Nyomtatás
Amerikai konyhás: Igen; Kertkapcsolatos: Igen;
|
Eladó lakás Budapest, XIII. kerület Országbíró utca |
ID szám: 85006 |
|
Az Ön üzletkötője:
 Tőkés Levente
 +36-30-362-4723
|
Főbb adatok:
| Ajánlat |
Eladó |
| Típus |
Újépítésű |
| Jelleg |
Új lakás |
| Ár |
101.50 MFt |
|
Ingatlan adatai
| Épült |
2027 |
| Kerület |
Budapest XIII. kerület |
| Övezet |
Angyalföld |
| Komfort |
Összkomfort |
|
Épületszintek
|
2 emelet |
| Lift |
nincs |
| Hasznos alapterület |
71 nm |
| Telek területe |
866 nm |
| Lakáshoz tartozó kert |
866 nm |
| Erkély területe |
2 nm |
| Egész szobák száma |
1 db |
| Félszobák száma |
3 db |
| Emelet |
2. emelet + Egyszerű emelet |
|
Ingatlan bemutatása
ÚJ ÉPÍTÉSŰ INGATLANOK 2027 KÖLTÖZÉSSEL!
Angyalföld:
Angyalföld Budapest XIII. kerületének legnagyobb városrésze, amely az egykori ipari zónából mára modern lakó- és irodanegyeddé alakult át. Hagyományos ipari zónák helyén ma már irodaházak, kereskedelmi egységek és a Duna-parton luxuslakások találhatók.
Az épület tettérbeépítése során törekedtünk olyan lakások kialakítására, ami a mai lakásigényeknek felel
meg, mint amerikai konyhás nappali és külön hálószoba. Változatos lakásokat alakítottunk ki úgy
méretükben, mint elrendezésükben.
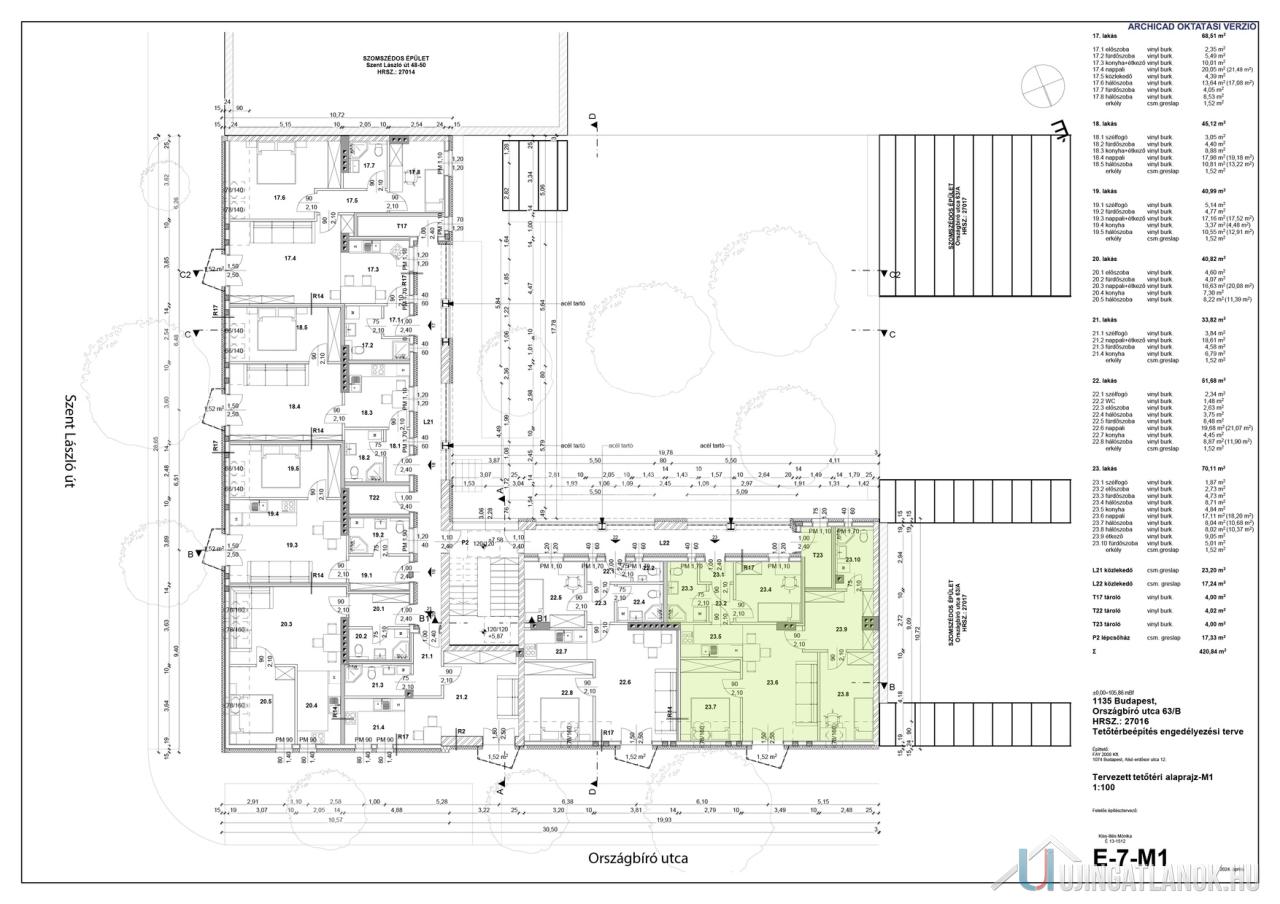
23 lakás.
Előszoba: 2.73 nm.
Előtér: 1.87 nm.
Fürdőszoba: 4.73 nm.
Konyha: 4.84 nm.
Nappali: 18.20 nm.
Közlekedő: 4.39 nm.
Hálószoba: 8.71 nm.
Fürdőszoba: 4.05 nm.
Halószoba: 8.04 nm.
Hálószoba: 8.02 nm.
Fürdőszoba: 5.01 nm.
Erkély: 1.52 nm.
Fizetés: készültségi fokozathoz kötött fizetési ütemezés.
A további kérdésekkel és a megtekintéssel kapcsolatban, kérem keressen a megadott mobil számon.
|
|
Eladó lakás Budapest, XIII. kerület Országbíró utca
ID szám: 85006
Amerikai konyhás: Igen; Kertkapcsolatos: Igen;
Ajánlat
Eladó
Típus
Újépítésű
Épület jellege
Új lakás
Ár
101.50 MFt
Ingatlan adatai
| Épült |
2027 |
| Kerület |
Budapest XIII. kerület |
| Övezet |
Angyalföld |
| Komfort |
Összkomfort |
|
Épületszintek
tetőtér
pinceszint
földszint
|
2 emelet
|
| Lift |
|
| Hasznos alapterület |
71 nm |
| Telek területe |
866 nm |
| Lakáshoz tartozó kert |
866 nm |
| Erkély területe |
2 nm |
| Egész szobák száma |
1 db |
| Félszobák száma |
3 db |
| Emelet
egyszerű emelet
tetőtér
tetőtéri kétszintes
|
2. emelet
|
Ingatlan bemutatása
ÚJ ÉPÍTÉSŰ INGATLANOK 2027 KÖLTÖZÉSSEL!
Angyalföld:
Angyalföld Budapest XIII. kerületének legnagyobb városrésze, amely az egykori ipari zónából mára modern lakó- és irodanegyeddé alakult át. Hagyományos ipari zónák helyén ma már irodaházak, kereskedelmi egységek és a Duna-parton luxuslakások találhatók.
Az épület tettérbeépítése során törekedtünk olyan lakások kialakítására, ami a mai lakásigényeknek felel
meg, mint amerikai konyhás nappali és külön hálószoba. Változatos lakásokat alakítottunk ki úgy
méretükben, mint elrendezésükben.
23 lakás.
Előszoba: 2.73 nm.
Előtér: 1.87 nm.
Fürdőszoba: 4.73 nm.
Konyha: 4.84 nm.
Nappali: 18.20 nm.
Közlekedő: 4.39 nm.
Hálószoba: 8.71 nm.
Fürdőszoba: 4.05 nm.
Halószoba: 8.04 nm.
Hálószoba: 8.02 nm.
Fürdőszoba: 5.01 nm.
Erkély: 1.52 nm.
Fizetés: készültségi fokozathoz kötött fizetési ütemezés.
A további kérdésekkel és a megtekintéssel kapcsolatban, kérem keressen a megadott mobil számon.