Nyomtatás
Amerikai konyhás: Igen; Kertkapcsolatos: Igen; Közös költség összege: 6000 Ft
|
Eladó lakás Budapest, XVI. kerület Ajak utca |
ID szám: 84118 |
|
Az Ön üzletkötője:
 Mangult András
 +36-70-382-8433
|
Főbb adatok:
| Ajánlat |
Eladó |
| Típus |
Újszerű |
| Jelleg |
Új lakás |
| Ár |
159.90 MFt |
|
Ingatlan adatai
| Épült |
2020 |
| Kerület |
Budapest XVI. kerület |
| Övezet |
Petőfi kert |
| Komfort |
Dupla komfort |
| Fűtési mód |
Cirkófűtés |
|
Épületszintek
|
1 emelet |
| Lift |
nincs |
| Hasznos alapterület |
120 nm |
| Telek területe |
241 nm |
| Lakáshoz tartozó kert |
241 nm |
| Erkély területe |
5 nm |
| Terasz területe |
20 nm |
| Fűtési mód |
Cirkófűtés |
| Egész szobák száma |
4 db |
| Parkolás |
Teremgarázs-garázs |
| Emelet |
Földszint + Egyszerű emelet |
|
Ingatlan bemutatása
Eladó modern, napelemes lakás, szinte nulla rezsivel Mátyásföld legszebb részén – tehermentes, azonnal költözhető!
Mátyásföld-Petőfi kertben természetvédelmi övezet mellett, eladó egy 6 éve épült, világos, korszerű, dél-nyugati fekvésű sorházi ingatlan.
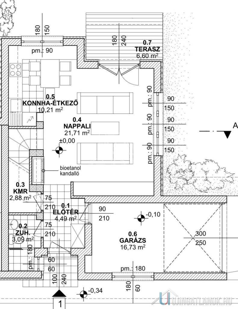
A 98 nm-es lakótér mellett 17 nm-es fűtött garázs, 5 nm erkély, a földszinten 20 nm-es megnagyított terasz és 241 nm saját kert tartozik hozzá.
Tehermentes, azonnal költözhető!
Főbb jellemzők:
✅ Tágas nappali amerikai konyhával (32 nm) – beépített Whirlpool és Gorenje gépekkel.
✅ Összesen nappali+ 3 hálószoba.
✅ Beépített szekrények az emeleti szobákban.
✅ Két fürdőszoba – az alsó szinten zuhany, az emeleten sarokkád.
✅ Modern gépészet – padlófűtés (alsó szint és felső fürdő), radiátoros fűtés, Remeha kazán.
✅ Automata redőnyök és rolós/pliszé szúnyoghálók minden hálószobában.
✅ 241 nm-es kert – pergolás, 20 nm-es fedett terasz, automata öntözőrendszer.
✅ Energiatakarékos megoldások – 5 kW-os napelem rendszer.
✅ Daikin hűtő-fűtő klíma.
✅ Közművek egyedi mérőórákkal.
✅ Biztonság – mozgás- és nyitásérzékelős riasztó.
Minőségi anyagokkal épült, háromrétegű üvegezésű nyílászárókkal, Porotherm falazattal és Dryvit szigeteléssel.
Megtekintéssel kapcsolatban, várom megtisztelő hívását!
Az ingatlan csak referenssel tekinthető meg!
A hirdetésben feltüntetett adatok és információk csak tájékoztató jellegűek, jogi kötelezettséggel nem bíró jognyilatkozatnak minősülnek, mely nem tekinthető ajánlat tételnek és nem járnak az eladóra nézve kötelező ajánlati kötöttséggel.
|
|
Eladó lakás Budapest, XVI. kerület Ajak utca
ID szám: 84118
Amerikai konyhás: Igen; Kertkapcsolatos: Igen; Közös költség összege: 6000 Ft
Ajánlat
Eladó
Típus
Újszerű
Épület jellege
Új lakás
Ár
159.90 MFt
Ingatlan adatai
| Épült |
2020 |
| Kerület |
Budapest XVI. kerület |
| Övezet |
Petőfi kert |
| Komfort |
Dupla komfort |
|
Épületszintek
tetőtér
pinceszint
földszint
|
1 emelet
|
| Lift |
|
| Hasznos alapterület |
120 nm |
| Telek területe |
241 nm |
| Lakáshoz tartozó kert |
241 nm |
| Erkély területe |
5 nm |
| Terasz területe |
20 nm |
| Fűtési mód |
Cirkófűtés |
| Egész szobák száma |
4 db |
| Parkolás |
Teremgarázs-garázs |
| Emelet
egyszerű emelet
tetőtér
tetőtéri kétszintes
|
Földszint
|
Ingatlan bemutatása
Eladó modern, napelemes lakás, szinte nulla rezsivel Mátyásföld legszebb részén – tehermentes, azonnal költözhető!
Mátyásföld-Petőfi kertben természetvédelmi övezet mellett, eladó egy 6 éve épült, világos, korszerű, dél-nyugati fekvésű sorházi ingatlan.
A 98 nm-es lakótér mellett 17 nm-es fűtött garázs, 5 nm erkély, a földszinten 20 nm-es megnagyított terasz és 241 nm saját kert tartozik hozzá.
Tehermentes, azonnal költözhető!
Főbb jellemzők:
✅ Tágas nappali amerikai konyhával (32 nm) – beépített Whirlpool és Gorenje gépekkel.
✅ Összesen nappali+ 3 hálószoba.
✅ Beépített szekrények az emeleti szobákban.
✅ Két fürdőszoba – az alsó szinten zuhany, az emeleten sarokkád.
✅ Modern gépészet – padlófűtés (alsó szint és felső fürdő), radiátoros fűtés, Remeha kazán.
✅ Automata redőnyök és rolós/pliszé szúnyoghálók minden hálószobában.
✅ 241 nm-es kert – pergolás, 20 nm-es fedett terasz, automata öntözőrendszer.
✅ Energiatakarékos megoldások – 5 kW-os napelem rendszer.
✅ Daikin hűtő-fűtő klíma.
✅ Közművek egyedi mérőórákkal.
✅ Biztonság – mozgás- és nyitásérzékelős riasztó.
Minőségi anyagokkal épült, háromrétegű üvegezésű nyílászárókkal, Porotherm falazattal és Dryvit szigeteléssel.
Megtekintéssel kapcsolatban, várom megtisztelő hívását!
Az ingatlan csak referenssel tekinthető meg!
A hirdetésben feltüntetett adatok és információk csak tájékoztató jellegűek, jogi kötelezettséggel nem bíró jognyilatkozatnak minősülnek, mely nem tekinthető ajánlat tételnek és nem járnak az eladóra nézve kötelező ajánlati kötöttséggel.