Nyomtatás
Amerikai konyhás: Nem; Kertkapcsolatos: Igen; Közös költség összege: 10000 Ft
|
Eladó lakás Budapest, XVI. kerület Boldogasszonyfa utca |
ID szám: 82234 |
|
Az Ön üzletkötője:
 Porkoláb Petra
 +36-30-324-6110
|
Főbb adatok:
| Ajánlat |
Eladó |
| Típus |
Újszerű |
| Jelleg |
Új lakás |
| Ár |
155 MFt |
|
Ingatlan adatai
| Épült |
2026 |
| Kerület |
Budapest XVI. kerület |
| Komfort |
Összkomfort |
|
Épületszintek
|
2 emelet |
| Lift |
nincs |
| Hasznos alapterület |
102 nm |
| Erkély területe |
10 nm |
| Egész szobák száma |
4 db |
| Parkolás |
Udvaron-felszíni beálló |
| Emelet |
Földszint + Egyszerű emelet |
|
Ingatlan bemutatása
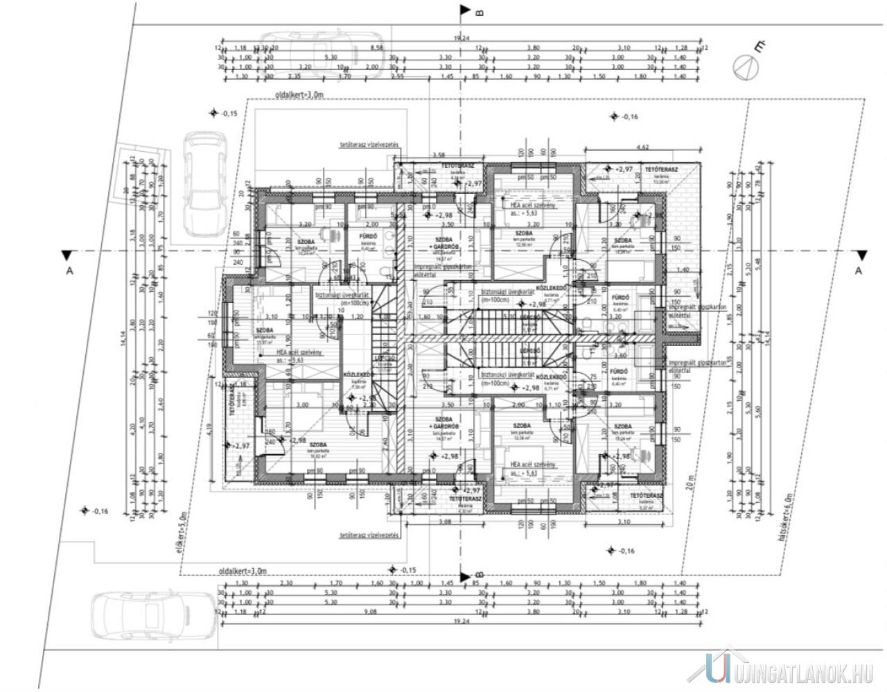
Mátyásföld zöld, csendes részén kínálunk eladásra egy belső kétszintes, 108 m²-es lakást egy igényes, háromlakásos társasházban. A környezet nyugodt és barátságos, mégis könnyen megközelíthető, így ideális választás azoknak, akik szeretik a rendezett, kertvárosi hangulatot.
A lakás modern, energiatakarékos megoldásokkal készül, többek között:
• hőszivattyús fűtésrendszer
• háromrétegű üvegezésű nyílászárók
• elektromos redőnyök
• klímaberendezéssel ellátott helyiségek
• szabadon választható burkolatok, hogy az otthon a saját stílusodra formálható legyen
A mindennapi kényelmet tovább növeli, hogy a lakáshoz:
• saját kertrész tartozik
• saját kocsibeálló biztosított
Az ingatlan kiválóan megfelel fiatal pároknak, családoknak, illetve mindenkinek, aki modern, új építésű otthont keres egy rendezett és csendes környéken.
Várható átadás: 2026 nyara.
|
|
Eladó lakás Budapest, XVI. kerület Boldogasszonyfa utca
ID szám: 82234
Amerikai konyhás: Nem; Kertkapcsolatos: Igen; Közös költség összege: 10000 Ft
Ajánlat
Eladó
Típus
Újszerű
Épület jellege
Új lakás
Ár
155 MFt
Ingatlan adatai
| Épült |
2026 |
| Kerület |
Budapest XVI. kerület |
| Komfort |
Összkomfort |
|
Épületszintek
tetőtér
pinceszint
földszint
|
2 emelet
|
| Lift |
|
| Hasznos alapterület |
102 nm |
| Erkély területe |
10 nm |
| Egész szobák száma |
4 db |
| Parkolás |
Udvaron-felszíni beálló |
| Emelet
egyszerű emelet
tetőtér
tetőtéri kétszintes
|
Földszint
|
Ingatlan bemutatása
Mátyásföld zöld, csendes részén kínálunk eladásra egy belső kétszintes, 108 m²-es lakást egy igényes, háromlakásos társasházban. A környezet nyugodt és barátságos, mégis könnyen megközelíthető, így ideális választás azoknak, akik szeretik a rendezett, kertvárosi hangulatot.
A lakás modern, energiatakarékos megoldásokkal készül, többek között:
• hőszivattyús fűtésrendszer
• háromrétegű üvegezésű nyílászárók
• elektromos redőnyök
• klímaberendezéssel ellátott helyiségek
• szabadon választható burkolatok, hogy az otthon a saját stílusodra formálható legyen
A mindennapi kényelmet tovább növeli, hogy a lakáshoz:
• saját kertrész tartozik
• saját kocsibeálló biztosított
Az ingatlan kiválóan megfelel fiatal pároknak, családoknak, illetve mindenkinek, aki modern, új építésű otthont keres egy rendezett és csendes környéken.
Várható átadás: 2026 nyara.