Nyomtatás
Amerikai konyhás: Igen; Kertkapcsolatos: Igen;

Eladó lakás Budapest, XXIII. kerület Kertvárosi körút

ID szám: 84192

Az Ön üzletkötője:

Göbölyös Ágnes
+36-30-397-6489

Főbb adatok:

Ajánlat Eladó
Típus Újépítésű
Jelleg Új lakás
Ár 77.58 MFt

Ingatlan adatai

Épült 2026
Kerület Budapest XXIII. kerület
Komfort Összkomfort
Épületszintek 1 emelet
Lift nincs
Hasznos alapterület 53 nm
Erkély területe 4 nm
Egész szobák száma 3 db
Parkolás Udvaron-felszíni beálló
Emelet 1. emelet + Egyszerű emelet

Ingatlan bemutatása

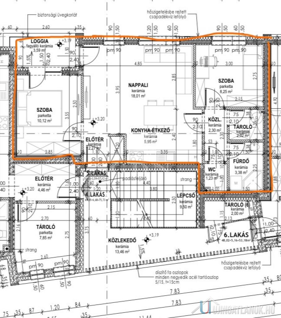
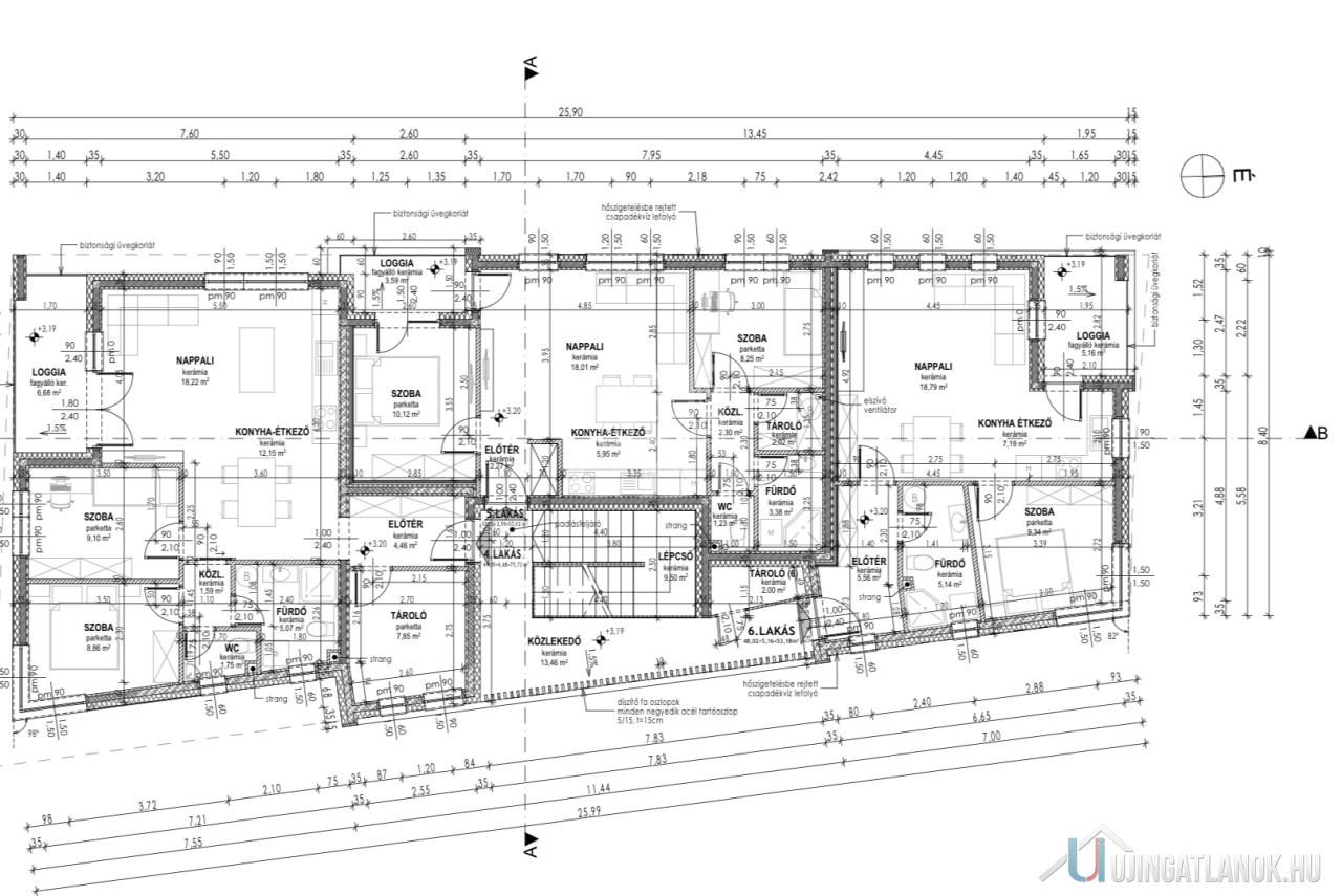
Eladó egy új építésű, összesen 6 lakásból álló társasház valamennyi lakása. Az ingatlan Soroksár új kertvárosi lakóparkjában, csendes, családbarát környezetben található, ahol a nyugodt életvitel és a jó városi elérhetőség harmonikusan találkozik. A város zajától távol, mégis kiváló infrastruktúrával rendelkezik: üzletek, szolgáltatások és tömegközlekedés könnyen elérhetők. A Soroksári kiserdő és a Duna közelsége különleges, természetközeli hangulatot biztosít, amely valódi otthonérzetet nyújt a leendő tulajdonosok számára. 5. lakás: - Emelet, - 53,5 nm, - 2 szoba, - Amerikai konyhás nappali, - Fürdő-Wc, - Kamra, - Erkély 3,7nm. - 77.575.000 Ft További lakások az emeleten: 4. lakás: 100.050.000 Ft 6. lakás: 69.600.000 Ft MŰSZAKI TARTALOM Szerkezet és szigetelés • ProKoncept rendszerű falazat (25–35 cm vastagság) • 15 cm vastag grafitos hőszigetelés a homlokzaton • Lábazati és koszorú előtti hőszigetelés • Talajnedvesség elleni bitumenes szigetelés • Kiemelkedő hő- és hangszigetelési tulajdonságok Tető • Égetett agyag cserépfedés • Alacsony hajlásszögű tetőrészeken korcolt fémlemez fedés • Tartós, időjárásálló szerkezeti kialakítás Nyílászárók • Műanyag nyílászárók, 3 rétegű hőszigetelő üvegezéssel • Jó hő- és hangszigetelési értékek • Teraszajtók szintén 3 rétegű üvegezéssel Fűtés – gépészet • Levegő–víz hőszivattyús fűtési rendszer • Felületfűtés (padlófűtés) • Elektromos bojleres melegvíz-ellátás Energia & jövőállóság • Energiatakarékos, korszerű műszaki megoldások • Napelem későbbi kiépítésének lehetősége • Elektromos autó töltés előkészítése Burkolatok, belső kialakítás • Gipszkarton álmennyezet • Burkolatok magas minőségben, választható kivitelben Parkolás, környezet • Telken belüli parkolás • Minden lakáshoz saját autóbeálló • Földszinti lakásokhoz saját kis kert • Aszfaltozott utca, kiépített közművek Az elkészült lakások lakhatási engedéllyel kerülnek átadásra!!! Tervezett átadás: 2026. év vége! Ütemezés: 20% foglaló, a fennmaradó összeg megbeszélés alapján. Az ingatlan 3%-os Otthon Start hitellel is megvásárolható. Irodánk 30 éves szakmai tapasztalattal áll ügyfelei rendelkezésére! Bankfüggetlen hitelcentrummal, jogi hátérrel segítjük ingatlanvásárlását! Várom szíves megkeresését, hívjon bizalommal!

Eladó lakás Budapest, XXIII. kerület Kertvárosi körút

ID szám: 84192

Amerikai konyhás: Igen; Kertkapcsolatos: Igen;

Ajánlat

Eladó

Típus

Újépítésű

Épület jellege

Új lakás

Ár

77.58 MFt

Ingatlan adatai

Épült 2026
Kerület Budapest XXIII. kerület
Komfort Összkomfort
Épületszintek tetőtér pinceszint földszint 1 emelet nincs nincs nincs
Lift nincs
Hasznos alapterület 53 nm
Erkély területe 4 nm
Egész szobák száma 3 db
Parkolás Udvaron-felszíni beálló
Emelet egyszerű emelet tetőtér tetőtéri kétszintes 1. emelet van nincs nincs
Nagyításhoz kattintson a képre

Az Ön üzletkötője:

Göbölyös Ágnes
+36-30-397-6489
Üzenet az üzletkötőnek Ingatlan ajánlása Nyomtatási kép
Megosztás Facebookon Megosztás Twitteren

Ingatlan bemutatása

Eladó egy új építésű, összesen 6 lakásból álló társasház valamennyi lakása. Az ingatlan Soroksár új kertvárosi lakóparkjában, csendes, családbarát környezetben található, ahol a nyugodt életvitel és a jó városi elérhetőség harmonikusan találkozik. A város zajától távol, mégis kiváló infrastruktúrával rendelkezik: üzletek, szolgáltatások és tömegközlekedés könnyen elérhetők. A Soroksári kiserdő és a Duna közelsége különleges, természetközeli hangulatot biztosít, amely valódi otthonérzetet nyújt a leendő tulajdonosok számára. 5. lakás: - Emelet, - 53,5 nm, - 2 szoba, - Amerikai konyhás nappali, - Fürdő-Wc, - Kamra, - Erkély 3,7nm. - 77.575.000 Ft További lakások az emeleten: 4. lakás: 100.050.000 Ft 6. lakás: 69.600.000 Ft MŰSZAKI TARTALOM Szerkezet és szigetelés • ProKoncept rendszerű falazat (25–35 cm vastagság) • 15 cm vastag grafitos hőszigetelés a homlokzaton • Lábazati és koszorú előtti hőszigetelés • Talajnedvesség elleni bitumenes szigetelés • Kiemelkedő hő- és hangszigetelési tulajdonságok Tető • Égetett agyag cserépfedés • Alacsony hajlásszögű tetőrészeken korcolt fémlemez fedés • Tartós, időjárásálló szerkezeti kialakítás Nyílászárók • Műanyag nyílászárók, 3 rétegű hőszigetelő üvegezéssel • Jó hő- és hangszigetelési értékek • Teraszajtók szintén 3 rétegű üvegezéssel Fűtés – gépészet • Levegő–víz hőszivattyús fűtési rendszer • Felületfűtés (padlófűtés) • Elektromos bojleres melegvíz-ellátás Energia & jövőállóság • Energiatakarékos, korszerű műszaki megoldások • Napelem későbbi kiépítésének lehetősége • Elektromos autó töltés előkészítése Burkolatok, belső kialakítás • Gipszkarton álmennyezet • Burkolatok magas minőségben, választható kivitelben Parkolás, környezet • Telken belüli parkolás • Minden lakáshoz saját autóbeálló • Földszinti lakásokhoz saját kis kert • Aszfaltozott utca, kiépített közművek Az elkészült lakások lakhatási engedéllyel kerülnek átadásra!!! Tervezett átadás: 2026. év vége! Ütemezés: 20% foglaló, a fennmaradó összeg megbeszélés alapján. Az ingatlan 3%-os Otthon Start hitellel is megvásárolható. Irodánk 30 éves szakmai tapasztalattal áll ügyfelei rendelkezésére! Bankfüggetlen hitelcentrummal, jogi hátérrel segítjük ingatlanvásárlását! Várom szíves megkeresését, hívjon bizalommal!

Megosztás Facebookon Megosztás Twitteren
www.ujingatlanok.hu - QR kód

Linkajánló

 

LinkBank