Nyomtatás
Amerikai konyhás: Nem; Kertkapcsolatos: Igen; Közös költség összege: 1 Ft
|
Eladó lakás Budapest, XXIII. kerület Lórév utca |
ID szám: 83823 |
|
Az Ön üzletkötője:
 Gecse Balázs
 +36-70-336-9901
|
Főbb adatok:
| Ajánlat |
Eladó |
| Típus |
Újszerű |
| Jelleg |
Új lakás |
| Ár |
89.90 MFt |
|
Ingatlan adatai
| Épült |
2026 |
| Kerület |
Budapest XXIII. kerület |
| Övezet |
Millenium telep |
| Komfort |
Összkomfort |
|
Épületszintek
|
2 emelet |
| Lift |
nincs |
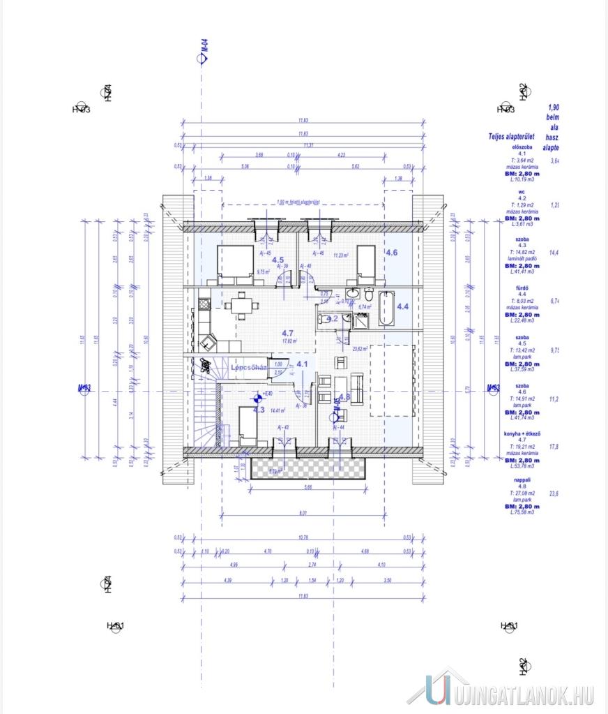
| Hasznos alapterület |
84 nm |
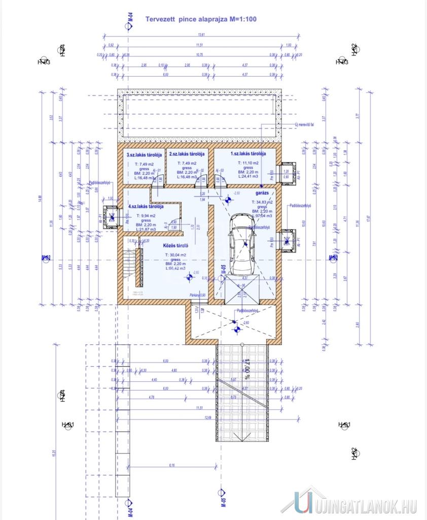
| Telek területe |
80 nm |
| Lakáshoz tartozó kert |
80 nm |
| Erkély területe |
6 nm |
| Egész szobák száma |
3 db |
| Parkolás |
Teremgarázs-garázs |
| Emelet |
Földszint + Egyszerű emelet |
|
Ingatlan bemutatása
Eladó felújított lakás Soroksáron – Lórév utca
Soroksáron, a Lórév utcában, egy 4 lakásos társasház tetőterében kínálok eladásra egy teljes körűen felújított lakást.
Az ingatlan tégláig visszabontásra került, a teljes víz- és elektromos hálózat cserélve lett.
Fűtés–hűtés: modern hibrid rendszer (hőszivattyú + gáz),
padlófűtéssel és mennyezeti hűtéssel a komfortos, energiatakarékos működésért.
A lakáshoz tartozik:
• önálló pincei tároló
• 1 db nyitott udvari gépkocsi-beálló
(mindkettő a vételár részét képezi)
Várható befejezés: 2026. július
Ideális választás korszerű, alacsony fenntartású otthont keresőknek.
|
|
Eladó lakás Budapest, XXIII. kerület Lórév utca
ID szám: 83823
Amerikai konyhás: Nem; Kertkapcsolatos: Igen; Közös költség összege: 1 Ft
Ajánlat
Eladó
Típus
Újszerű
Épület jellege
Új lakás
Ár
89.90 MFt
Ingatlan adatai
| Épült |
2026 |
| Kerület |
Budapest XXIII. kerület |
| Övezet |
Millenium telep |
| Komfort |
Összkomfort |
|
Épületszintek
tetőtér
pinceszint
földszint
|
2 emelet
|
| Lift |
|
| Hasznos alapterület |
84 nm |
| Telek területe |
80 nm |
| Lakáshoz tartozó kert |
80 nm |
| Erkély területe |
6 nm |
| Egész szobák száma |
3 db |
| Parkolás |
Teremgarázs-garázs |
| Emelet
egyszerű emelet
tetőtér
tetőtéri kétszintes
|
Földszint
|
Ingatlan bemutatása
Eladó felújított lakás Soroksáron – Lórév utca
Soroksáron, a Lórév utcában, egy 4 lakásos társasház tetőterében kínálok eladásra egy teljes körűen felújított lakást.
Az ingatlan tégláig visszabontásra került, a teljes víz- és elektromos hálózat cserélve lett.
Fűtés–hűtés: modern hibrid rendszer (hőszivattyú + gáz),
padlófűtéssel és mennyezeti hűtéssel a komfortos, energiatakarékos működésért.
A lakáshoz tartozik:
• önálló pincei tároló
• 1 db nyitott udvari gépkocsi-beálló
(mindkettő a vételár részét képezi)
Várható befejezés: 2026. július
Ideális választás korszerű, alacsony fenntartású otthont keresőknek.