Nyomtatás
|
Amerikai konyhás: Igen; Kertkapcsolatos: Igen;
|
||
Eladó lakás Győr Kossuth utca |
ID szám: 82379 | |
|
Eladó lakás Győr Kossuth utca
ID szám: 82379
Amerikai konyhás: Igen; Kertkapcsolatos: Igen;
Ajánlat
Eladó
Típus
Újszerű
Épület jellege
Új lakás
Ár
149 MFt
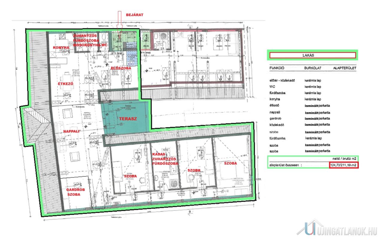
Ingatlan adatai
| Épült | 2020 |
|---|---|
| Megye | Győr-Moson-Sopron megye |
| Város | Győr |
| Komfort | Dupla komfort |
| Épületszintek tetőtér pinceszint földszint |
2 emelet
|
| Lift |
|
| Hasznos alapterület | 211 nm |
| Terasz területe | 11 nm |
| Fűtési mód | Cirkófűtés |
| Egész szobák száma | 4 db |
| Emelet egyszerű emelet tetőtér tetőtéri kétszintes |
2. emelet
|
Nagyításhoz kattintson a képre
Az Ön üzletkötője:
Korompay Rita
+36-20-419-7023


