Nyomtatás
Amerikai konyhás: Igen; Kertkapcsolatos: Igen;
|
Eladó lakás Kiskunlacháza Pest megye |
ID szám: 83776 |
|
Az Ön üzletkötője:
 Csík Zsolt
 +36-30-641-6167
|
Főbb adatok:
| Ajánlat |
Eladó |
| Típus |
Újépítésű |
| Jelleg |
Új lakás |
| Ár |
32.45 MFt |
|
Ingatlan adatai
| Épült |
2025 |
| Megye |
Pest megye |
| Város |
Kiskunlacháza |
| Komfort |
Összkomfort |
|
Épületszintek
|
3 emelet |
| Lift |
van |
| Hasznos alapterület |
30 nm |
| Egész szobák száma |
1 db |
| Parkolás |
Teremgarázs-garázs |
| Emelet |
Földszint + Egyszerű emelet |
|
Ingatlan bemutatása
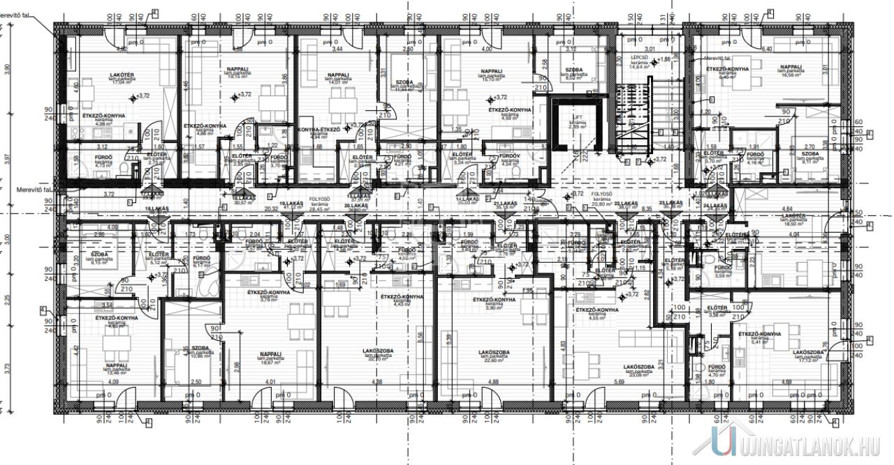
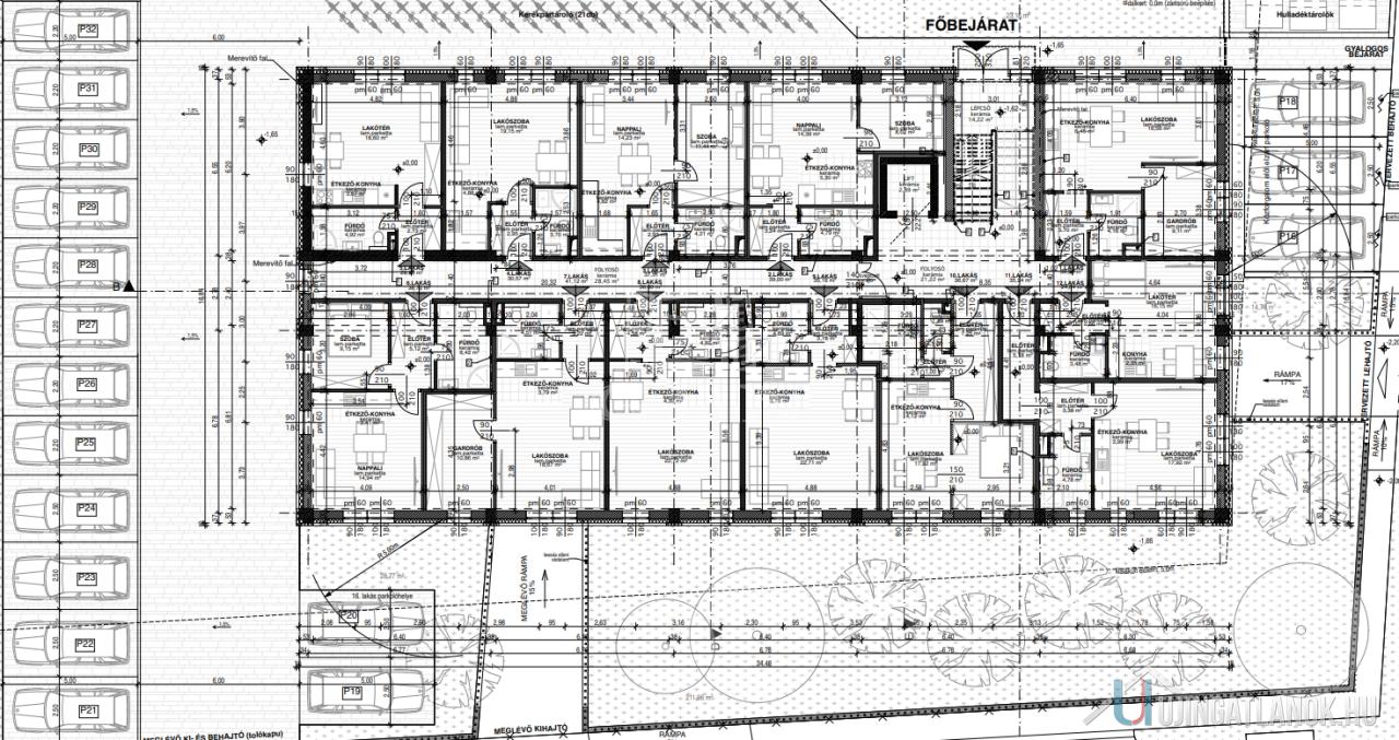
Kiskunlacháza központi részén, kínálom megvételre új-építésű 31 lakásos liftes társas-ház, földszinti 29,50 nm-es lakását!
Kiskunlacházán most épülő társas-ház földszint 5-ös. lakása eladó!
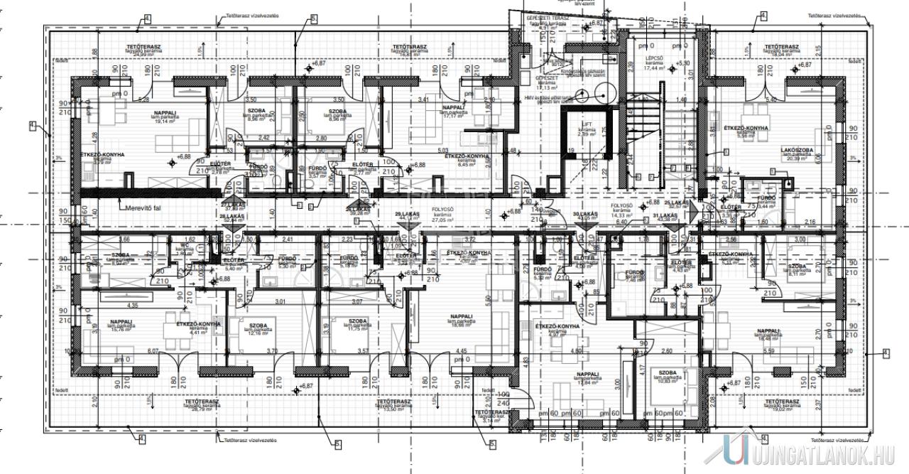
A társas-házban 31 db lakás épül 27 és 54 nm között három szinten,
lakások 2026 februárjában kerülnek átadásra.
Nézze meg a többi lakást is a hirdetésem között!
Műszaki tartalom:
-alap vasalt beton,
-falazat phorothetm tégla
-monolit beton födém
-nyílászáró 3rtg üvegezett műanyag szerkezetű
-tető fedése beton cserép
-fűtés hőszivattyú, padlófűtés hőleadással
-15 cm Dryvit rendszerű homlokzatszigetelés
-választható hideg és meleg burkolat.
A lakás 29,50 nm, helyiségei:előtér 2,73 nm, fürdőszoba 4,73 nm, lakótér 22,04 nm.
A lakáshoz vásárolható teremgarázshely melynek ára 3.500.000 ft, vagy földfelszíni parkolóhely melynek ára 1.500.000 ft, (megvásárlása nem kötelező), valamint tároló helyiség is vásárolható.
A társas-házban 31 db lakás kerül megépítésre, a földszinti és első emeleti lakások erkély nélküliek, a 2 emeleti lakások terasz kapcsolattal rendelkeznek.
Amennyiben kérdése merül fel, vagy megtekintené a lakást keressen bizalommal!
FINANSZÍROZÁS:
Nálunk mindent egy helyen intézhet:
- hivatalos ingatlanközvetítés;
- szakszerű jogi képviselet;
- profi CSOK-PLUSZ, és hitelügyintézés: 16 Bank, több mint 100 konstrukció;
A részletes adatvédelmi tájékoztató folyamatosan elérhető a gdn-ingatlan adatvedelmi oldalon.
|
|
Eladó lakás Kiskunlacháza Pest megye
ID szám: 83776
Amerikai konyhás: Igen; Kertkapcsolatos: Igen;
Ajánlat
Eladó
Típus
Újépítésű
Épület jellege
Új lakás
Ár
32.45 MFt
Ingatlan adatai
| Épült |
2025 |
| Megye |
Pest megye |
| Város |
Kiskunlacháza |
| Komfort |
Összkomfort |
|
Épületszintek
tetőtér
pinceszint
földszint
|
3 emelet
|
| Lift |
|
| Hasznos alapterület |
30 nm |
| Egész szobák száma |
1 db |
| Parkolás |
Teremgarázs-garázs |
| Emelet
egyszerű emelet
tetőtér
tetőtéri kétszintes
|
Földszint
|
Ingatlan bemutatása
Kiskunlacháza központi részén, kínálom megvételre új-építésű 31 lakásos liftes társas-ház, földszinti 29,50 nm-es lakását!
Kiskunlacházán most épülő társas-ház földszint 5-ös. lakása eladó!
A társas-házban 31 db lakás épül 27 és 54 nm között három szinten,
lakások 2026 februárjában kerülnek átadásra.
Nézze meg a többi lakást is a hirdetésem között!
Műszaki tartalom:
-alap vasalt beton,
-falazat phorothetm tégla
-monolit beton födém
-nyílászáró 3rtg üvegezett műanyag szerkezetű
-tető fedése beton cserép
-fűtés hőszivattyú, padlófűtés hőleadással
-15 cm Dryvit rendszerű homlokzatszigetelés
-választható hideg és meleg burkolat.
A lakás 29,50 nm, helyiségei:előtér 2,73 nm, fürdőszoba 4,73 nm, lakótér 22,04 nm.
A lakáshoz vásárolható teremgarázshely melynek ára 3.500.000 ft, vagy földfelszíni parkolóhely melynek ára 1.500.000 ft, (megvásárlása nem kötelező), valamint tároló helyiség is vásárolható.
A társas-házban 31 db lakás kerül megépítésre, a földszinti és első emeleti lakások erkély nélküliek, a 2 emeleti lakások terasz kapcsolattal rendelkeznek.
Amennyiben kérdése merül fel, vagy megtekintené a lakást keressen bizalommal!
FINANSZÍROZÁS:
Nálunk mindent egy helyen intézhet:
- hivatalos ingatlanközvetítés;
- szakszerű jogi képviselet;
- profi CSOK-PLUSZ, és hitelügyintézés: 16 Bank, több mint 100 konstrukció;
A részletes adatvédelmi tájékoztató folyamatosan elérhető a gdn-ingatlan adatvedelmi oldalon.