Nyomtatás
|
Amerikai konyhás: Nem; Kertkapcsolatos: Igen;
|
||
Eladó lakás Kőszegszerdahely Kőszeg |
ID szám: 86305 | |
|
Eladó lakás Kőszegszerdahely Kőszeg
ID szám: 86305
Amerikai konyhás: Nem; Kertkapcsolatos: Igen;
Ajánlat
Eladó
Típus
Újszerű
Épület jellege
Új lakás
Ár
35.90 MFt
Ingatlan adatai
| Épült | 2027 |
|---|---|
| Megye | Vas megye |
| Város | Kőszegszerdahely |
| Komfort | Összkomfort |
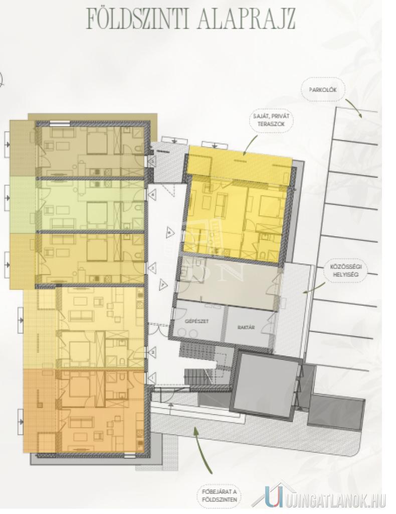
| Épületszintek tetőtér pinceszint földszint |
2 emelet
|
| Lift |
|
| Hasznos alapterület | 30 nm |
| Terasz területe | 14 nm |
| Fűtési mód | Egyéb |
| Egész szobák száma | 1 db |
| Félszobák száma | 1 db |
| Emelet egyszerű emelet tetőtér tetőtéri kétszintes |
Földszint
|
Nagyításhoz kattintson a képre
Az Ön üzletkötője:
Kecskeméti Zsolt
+36-30-738-0753


