Nyomtatás
Amerikai konyhás: Igen; Kertkapcsolatos: Igen;

Eladó lakás Mende Mendei Lakópark, D. épület Fszt. 1.

ID szám: 82184

Az Ön üzletkötője:

Nyegrutz Tamás
+36-30-560-5587

Főbb adatok:

Ajánlat Eladó
Típus Újépítésű
Jelleg Új lakás
Ár 61.90 MFt

Ingatlan adatai

Épült 2025
Megye Pest megye
Város Mende
Komfort Összkomfort
Épületszintek 2 emelet
Lift nincs
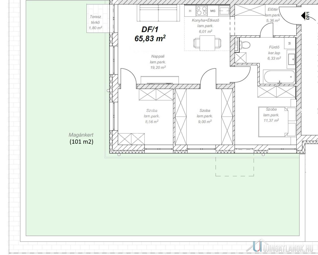
Hasznos alapterület 66 nm
Telek területe 101 nm
Lakáshoz tartozó kert 101 nm
Terasz területe 2 nm
Egész szobák száma 2 db
Félszobák száma 2 db
Parkolás Teremgarázs-garázs
Emelet Földszint + Egyszerű emelet

Ingatlan bemutatása

UTOLSÓ ELADÓ LAKÁS AZ ELSŐ ÜTEMBŐL! Mendén csodálatos zöld környezetben a Hétdomb lakóparkban, I. ütem második szakaszában megvalósuló új építésű zárt lakóparkban, A. kategóriás energiatakarékos ( hőszivattyús ) 16 lakásos társasházban, nettó hasznos 65,83 m² alapterületű, FÖLDSZINTI kertkapcsolatos lakást, SAJÁT 101 m² KERTRÉSSZEL kínálunk eladásra ( D épület Földszint 1. Lakás ). Tájolása: K-D-Ny. A kivitelező cég szem előtt tartja az alacsony rezsiköltséget, ezért a projekt a legkorszerűbb követelményeknek megfelel, ( lásd műszaki tartalom ). Az épületek társasházzá lesznek nyilvánítva, így a lakások külön helyrajzi számmal azaz albetéttel rendelkeznek majd. A lakások fűtését hőszivattyú biztosítja padlófűtéses hőleadással, a használati melegvíz ellátást minden lakásban hőszivattyús bojler biztosítja. Külső felszíni kocsibeálló bruttó ára: 2 MFt./db. Belső sorompós kocsibeálló ára: 2,5 MFt/db ; elektromos töltési lehetőséggel: 3 MFt./db. Tároló bruttó ára: 2 MFt./db. D. épület vállalt befejezési ideje kulcsrakészen legkésőbb: 2026.05.31. D. épület várható használatbavételi engedélye legkésőbb: 2026.08.30 Műszaki tartalom ( részlet ): -Alapozás: Monolit vasbeton lemezalapozás -Teherhordó falazat: Porotherm vázkerámia falazat, érintkező falaknál SILKA (hanggátló) mészhomoktégla falazat -Válaszfalak: Falazott vagy Gipszkarton válaszfalak, kétoldali vakolással vagy gletteléssel -Tetőszerkezet: Szeglemezes rácsostartó faváz szerkezet -Nyílászárók: Fokozott légzárású 3 rtg-ű műanyag nyílászárók / k=min.: 1,0 W/m2K / -Vízszigetelés: 1, 2 rtg vagy kent modifikált bitumenes vastaglemez szigetelés -Hőszigetelés: Lábazaton 15 XPS hőszigetelés, oldalfalon 15 cm EPS hőszigetelés -Héjalás: Cserépfedés, bádogos kiegészítő elemekkel -Homlokzatburkolatok: Homlokzati színezett vakolat -Padlóburkolatok: Kerámia hidegburkolatok, laminált parketta melegburkolatok -Falburkolatok: Belső oldali vakolat, festve, felület kezelve, vizes helyiségekben kerámia burkolat Az ingatlan részletes ismertetése és bemutatása, előre egyeztetett időpontban lehetséges, amelyet nagyon rugalmasan kezelünk, akár HÉTVÉGÉN is. További kérdéseivel kapcsolatban várom a jelentkezését. Amennyiben Önnek a vásárláshoz szüksége lenne hitelre, babaváró kölcsönre, lakástakarékra, stb., kezdeményezheti a kapcsolatfelvételt bankfüggetlen hitelügyintézőinkkel, teljesen DÍJMENTESEN. Közel 25 év szakmai tapasztalattal rendelkezem, eladó vagy kiadó ingatlana értékesítése vagy bérbeadása esetén, készséggel állok az Ön rendelkezésére is, keressen bizalommal.

Eladó lakás Mende Mendei Lakópark, D. épület Fszt. 1.

ID szám: 82184

Amerikai konyhás: Igen; Kertkapcsolatos: Igen;

Ajánlat

Eladó

Típus

Újépítésű

Épület jellege

Új lakás

Ár

61.90 MFt

Ingatlan adatai

Épült 2025
Megye Pest megye
Város Mende
Komfort Összkomfort
Épületszintek tetőtér pinceszint földszint 2 emelet nincs nincs nincs
Lift nincs
Hasznos alapterület 66 nm
Telek területe 101 nm
Lakáshoz tartozó kert 101 nm
Terasz területe 2 nm
Egész szobák száma 2 db
Félszobák száma 2 db
Parkolás Teremgarázs-garázs
Emelet egyszerű emelet tetőtér tetőtéri kétszintes Földszint van nincs nincs
Nagyításhoz kattintson a képre

Az Ön üzletkötője:

Nyegrutz Tamás
+36-30-560-5587
Üzenet az üzletkötőnek Ingatlan ajánlása Nyomtatási kép
Megosztás Facebookon Megosztás Twitteren

Ingatlan bemutatása

UTOLSÓ ELADÓ LAKÁS AZ ELSŐ ÜTEMBŐL! Mendén csodálatos zöld környezetben a Hétdomb lakóparkban, I. ütem második szakaszában megvalósuló új építésű zárt lakóparkban, A. kategóriás energiatakarékos ( hőszivattyús ) 16 lakásos társasházban, nettó hasznos 65,83 m² alapterületű, FÖLDSZINTI kertkapcsolatos lakást, SAJÁT 101 m² KERTRÉSSZEL kínálunk eladásra ( D épület Földszint 1. Lakás ). Tájolása: K-D-Ny. A kivitelező cég szem előtt tartja az alacsony rezsiköltséget, ezért a projekt a legkorszerűbb követelményeknek megfelel, ( lásd műszaki tartalom ). Az épületek társasházzá lesznek nyilvánítva, így a lakások külön helyrajzi számmal azaz albetéttel rendelkeznek majd. A lakások fűtését hőszivattyú biztosítja padlófűtéses hőleadással, a használati melegvíz ellátást minden lakásban hőszivattyús bojler biztosítja. Külső felszíni kocsibeálló bruttó ára: 2 MFt./db. Belső sorompós kocsibeálló ára: 2,5 MFt/db ; elektromos töltési lehetőséggel: 3 MFt./db. Tároló bruttó ára: 2 MFt./db. D. épület vállalt befejezési ideje kulcsrakészen legkésőbb: 2026.05.31. D. épület várható használatbavételi engedélye legkésőbb: 2026.08.30 Műszaki tartalom ( részlet ): -Alapozás: Monolit vasbeton lemezalapozás -Teherhordó falazat: Porotherm vázkerámia falazat, érintkező falaknál SILKA (hanggátló) mészhomoktégla falazat -Válaszfalak: Falazott vagy Gipszkarton válaszfalak, kétoldali vakolással vagy gletteléssel -Tetőszerkezet: Szeglemezes rácsostartó faváz szerkezet -Nyílászárók: Fokozott légzárású 3 rtg-ű műanyag nyílászárók / k=min.: 1,0 W/m2K / -Vízszigetelés: 1, 2 rtg vagy kent modifikált bitumenes vastaglemez szigetelés -Hőszigetelés: Lábazaton 15 XPS hőszigetelés, oldalfalon 15 cm EPS hőszigetelés -Héjalás: Cserépfedés, bádogos kiegészítő elemekkel -Homlokzatburkolatok: Homlokzati színezett vakolat -Padlóburkolatok: Kerámia hidegburkolatok, laminált parketta melegburkolatok -Falburkolatok: Belső oldali vakolat, festve, felület kezelve, vizes helyiségekben kerámia burkolat Az ingatlan részletes ismertetése és bemutatása, előre egyeztetett időpontban lehetséges, amelyet nagyon rugalmasan kezelünk, akár HÉTVÉGÉN is. További kérdéseivel kapcsolatban várom a jelentkezését. Amennyiben Önnek a vásárláshoz szüksége lenne hitelre, babaváró kölcsönre, lakástakarékra, stb., kezdeményezheti a kapcsolatfelvételt bankfüggetlen hitelügyintézőinkkel, teljesen DÍJMENTESEN. Közel 25 év szakmai tapasztalattal rendelkezem, eladó vagy kiadó ingatlana értékesítése vagy bérbeadása esetén, készséggel állok az Ön rendelkezésére is, keressen bizalommal.

Megosztás Facebookon Megosztás Twitteren
www.ujingatlanok.hu - QR kód

Linkajánló

 

LinkBank