Nyomtatás
Amerikai konyhás: Igen; Kertkapcsolatos: Igen;

Eladó lakás Pécel Pécel -1 lakás

ID szám: 83448

Az Ön üzletkötője:

Fenyvesi Marianna
+36-20-981-3790

Főbb adatok:

Ajánlat Eladó
Típus Újépítésű
Jelleg Új lakás
Ár 110 MFt

Ingatlan adatai

Épült 2026
Megye Pest megye
Város Pécel
Komfort Összkomfort
Fűtési mód Cirkófűtés
Épületszintek 1 emelet
Lift nincs
Hasznos alapterület 110 nm
Telek területe 508 nm
Lakáshoz tartozó kert 508 nm
Terasz területe 11 nm
Fűtési mód Cirkófűtés
Egész szobák száma 3 db
Félszobák száma 1 db
Parkolás Udvaron-felszíni beálló
Emelet Földszint + Egyszerű emelet

Ingatlan bemutatása

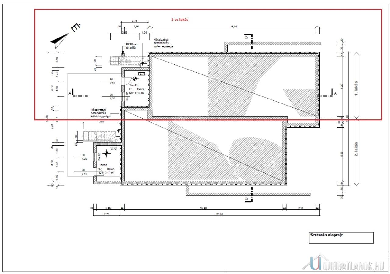
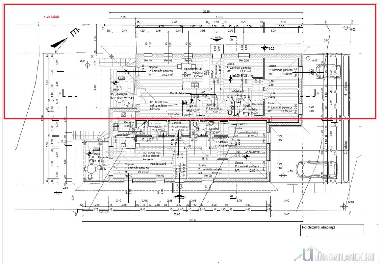
CSAK NÁLUNK! Pécel, kedvelt Levendulás lakóparkjában, eladó egy nettó 101,46 m², bruttó 110,56 m² alapterületű, 2 lakásos lakóépület 1-es lakása. A lakásokat, főként aszfaltos úton lehet megközelíteni. A 101,46 m²-es lakótérben 3 szoba + nappali szoba biztosít kényelmes életteret a jövőbeli lakóknak. A házhoz tartozik egy ~508 m²-es saját kert, ami tökéletes helyszín családi és baráti összejövetelekhez. A 11,28 m²-es teraszról ( alatta 9,1 m²-es tároló) gyönyörű kilátás nyílik a környező tájra. A lakások szimmetrikus belső elrendezéssel kerültek megtervezésre, földszintes kialakítással, illetve részleges szuterén beépítéssel. A lakások az oldalkerti homlokzatok közepén lévő bejáratokon közelíthetők meg. Rövid műszaki tartalom: - Az épület földszinti és emeleti külső határoló falai 30 cm vastag Porotherm 30 X-Therm falazó blokkból, úgynevezett klíma téglából készülnek. - A külső körítő falak külső oldalai 15 cm grafitos EPS (H 80) hab hőszigetelő vakolatot kapnak. - A tetőtér hőszigetelése, fújt hőszigetelő hab, kb. 45 cm vastag kőzetgyapotnak fele meg. - A válaszfalak 10 N+F Porotherm válaszfal lapokból falazott 10 cm vastag falszerkezetek. - A külső nyílászárók, fehér színben gyártott műanyag 3 rétegű, hőszigetelő üvegezéssel ellátottak (U= 0,9 W/m2K) ablakok lesznek. - A meleg víz ellátást és a fűtést gáz kondenzációs kazán biztosítja majd, padlófűtés hűleadással. Az alternatív fűtésről és hűtésről, KLÍMA fog gondoskodni. A tervezet áram kapacitás 1 x 32A lesz. Most még, kb. májusig Felár ellenében H-tarifás óra kérhető! Helységlista: - Földszint: - 4,48 m² belépő , - 7,59 m² közlekedő, - 12,12 m² szoba I., - 11,68 m² szoba II. , - 12,25 m² szoba III., - 4,80 m² fürdő, - 1,44 m² WC, - 3,68 m² gardrób, - 3,27 m² háztartási helység, - 31,03 m² nappali, - 9,12 m² konyha étkező - ----------------- 101,46 m² Nyitott terasz 11,28 m² A terasz alatt szuterén tároló 9,10 m² lesz. A kert durva tereprendezéssel lesz átadva. Műszaki tartalom: -Hideg burkolat 6.000 Ft/m² -Meleg burkolat 5.000 Ft/m² -Szaniterek 200.000 Ft-ig -Beltéri ajtók 60.000 Ft, kilinccsel együtt /db Magasabb árú építőanyag választás esetén a különbözetet a Vevő finanszírozza. Az ár tartalmazza még: - H-tarifa óra előkészítését, az órát és a dobozt nem. - Kapumozgató elektronika előkészítését, - Riasztó előkészítését. A berendezések kiépítése opcionálisan, plusz pénzért megrendelhetők. A belső VÁLASZFALAK, MÉG MÓDOSÍTHATÓK! A Kivitelező a műszaki tartalom változtatás jogát fenntartja, az előírt energetikai előírások figyelembe vételével. Kezdő befizetés 10% foglaló. A tervezett kezdés 2026 nyara ( a villanyóra függvényében! A tervezett átadás 1 év (2027 ősze. villanyóra függvényében! A Cég számos referenciával rendelkezik. Komoly érdeklődés esetén szívesen mutatunk referenciát! Ne hagyja ki ezt a lehetőséget, legyen Ön az új ikerház tulajdonosa Pécelen! JÖJJÖN el, NÉZZE meg, SZERESSEN bele! A GV HitelCentrum, KÖTELEZETTSÉG MENTESEN és DÍJMENTESEN, versenyezteti Önért a bankok hitelajánlatait. Ismerje meg a vissza nem térítendő állami támogatásokat! * Egyedi, bankfiókban nem elérhető kamat- és díjkedvezmények. * Ingyenes Hitelképesség vizsgálat. * Idő, energia és pénz megtakarítás. * Teljes hivatali ügyintézés. * Babaváró. * CSOK+ * Hitel. * Megtakarítás, * és EGYÉB BANKI tranzakcióban segítségére lehetünk! • Igény esetén, ÜGYVÉDI segítséget nyújtunk, MEGFIZETHETŐ áron! Ha az ingatlannal kapcsolatban bővebb felvilágosításra lenne szüksége, hívjon bizalommal, állok rendelkezésére! F.M.

Eladó lakás Pécel Pécel -1 lakás

ID szám: 83448

Amerikai konyhás: Igen; Kertkapcsolatos: Igen;

Ajánlat

Eladó

Típus

Újépítésű

Épület jellege

Új lakás

Ár

110 MFt

Ingatlan adatai

Épült 2026
Megye Pest megye
Város Pécel
Komfort Összkomfort
Épületszintek tetőtér pinceszint földszint 1 emelet nincs nincs nincs
Lift nincs
Hasznos alapterület 110 nm
Telek területe 508 nm
Lakáshoz tartozó kert 508 nm
Terasz területe 11 nm
Fűtési mód Cirkófűtés
Egész szobák száma 3 db
Félszobák száma 1 db
Parkolás Udvaron-felszíni beálló
Emelet egyszerű emelet tetőtér tetőtéri kétszintes Földszint van nincs nincs
Nagyításhoz kattintson a képre

Az Ön üzletkötője:

Fenyvesi Marianna
+36-20-981-3790
Üzenet az üzletkötőnek Ingatlan ajánlása Nyomtatási kép
Megosztás Facebookon Megosztás Twitteren

Ingatlan bemutatása

CSAK NÁLUNK! Pécel, kedvelt Levendulás lakóparkjában, eladó egy nettó 101,46 m², bruttó 110,56 m² alapterületű, 2 lakásos lakóépület 1-es lakása. A lakásokat, főként aszfaltos úton lehet megközelíteni. A 101,46 m²-es lakótérben 3 szoba + nappali szoba biztosít kényelmes életteret a jövőbeli lakóknak. A házhoz tartozik egy ~508 m²-es saját kert, ami tökéletes helyszín családi és baráti összejövetelekhez. A 11,28 m²-es teraszról ( alatta 9,1 m²-es tároló) gyönyörű kilátás nyílik a környező tájra. A lakások szimmetrikus belső elrendezéssel kerültek megtervezésre, földszintes kialakítással, illetve részleges szuterén beépítéssel. A lakások az oldalkerti homlokzatok közepén lévő bejáratokon közelíthetők meg. Rövid műszaki tartalom: - Az épület földszinti és emeleti külső határoló falai 30 cm vastag Porotherm 30 X-Therm falazó blokkból, úgynevezett klíma téglából készülnek. - A külső körítő falak külső oldalai 15 cm grafitos EPS (H 80) hab hőszigetelő vakolatot kapnak. - A tetőtér hőszigetelése, fújt hőszigetelő hab, kb. 45 cm vastag kőzetgyapotnak fele meg. - A válaszfalak 10 N+F Porotherm válaszfal lapokból falazott 10 cm vastag falszerkezetek. - A külső nyílászárók, fehér színben gyártott műanyag 3 rétegű, hőszigetelő üvegezéssel ellátottak (U= 0,9 W/m2K) ablakok lesznek. - A meleg víz ellátást és a fűtést gáz kondenzációs kazán biztosítja majd, padlófűtés hűleadással. Az alternatív fűtésről és hűtésről, KLÍMA fog gondoskodni. A tervezet áram kapacitás 1 x 32A lesz. Most még, kb. májusig Felár ellenében H-tarifás óra kérhető! Helységlista: - Földszint: - 4,48 m² belépő , - 7,59 m² közlekedő, - 12,12 m² szoba I., - 11,68 m² szoba II. , - 12,25 m² szoba III., - 4,80 m² fürdő, - 1,44 m² WC, - 3,68 m² gardrób, - 3,27 m² háztartási helység, - 31,03 m² nappali, - 9,12 m² konyha étkező - ----------------- 101,46 m² Nyitott terasz 11,28 m² A terasz alatt szuterén tároló 9,10 m² lesz. A kert durva tereprendezéssel lesz átadva. Műszaki tartalom: -Hideg burkolat 6.000 Ft/m² -Meleg burkolat 5.000 Ft/m² -Szaniterek 200.000 Ft-ig -Beltéri ajtók 60.000 Ft, kilinccsel együtt /db Magasabb árú építőanyag választás esetén a különbözetet a Vevő finanszírozza. Az ár tartalmazza még: - H-tarifa óra előkészítését, az órát és a dobozt nem. - Kapumozgató elektronika előkészítését, - Riasztó előkészítését. A berendezések kiépítése opcionálisan, plusz pénzért megrendelhetők. A belső VÁLASZFALAK, MÉG MÓDOSÍTHATÓK! A Kivitelező a műszaki tartalom változtatás jogát fenntartja, az előírt energetikai előírások figyelembe vételével. Kezdő befizetés 10% foglaló. A tervezett kezdés 2026 nyara ( a villanyóra függvényében! A tervezett átadás 1 év (2027 ősze. villanyóra függvényében! A Cég számos referenciával rendelkezik. Komoly érdeklődés esetén szívesen mutatunk referenciát! Ne hagyja ki ezt a lehetőséget, legyen Ön az új ikerház tulajdonosa Pécelen! JÖJJÖN el, NÉZZE meg, SZERESSEN bele! A GV HitelCentrum, KÖTELEZETTSÉG MENTESEN és DÍJMENTESEN, versenyezteti Önért a bankok hitelajánlatait. Ismerje meg a vissza nem térítendő állami támogatásokat! * Egyedi, bankfiókban nem elérhető kamat- és díjkedvezmények. * Ingyenes Hitelképesség vizsgálat. * Idő, energia és pénz megtakarítás. * Teljes hivatali ügyintézés. * Babaváró. * CSOK+ * Hitel. * Megtakarítás, * és EGYÉB BANKI tranzakcióban segítségére lehetünk! • Igény esetén, ÜGYVÉDI segítséget nyújtunk, MEGFIZETHETŐ áron! Ha az ingatlannal kapcsolatban bővebb felvilágosításra lenne szüksége, hívjon bizalommal, állok rendelkezésére! F.M.

Megosztás Facebookon Megosztás Twitteren
www.ujingatlanok.hu - QR kód

Linkajánló

 

LinkBank