Nyomtatás
Amerikai konyhás: Igen; Kertkapcsolatos: Igen;
|
Eladó lakás Szeged Szeged Belvárosi új lakások eladók! |
ID szám: 82308 |
|
Az Ön üzletkötője:
 Vetró-Gyenizse Dóra Anna
 +36-30-974-5561
|
Főbb adatok:
| Ajánlat |
Eladó |
| Típus |
Újépítésű |
| Jelleg |
Új lakás |
| Ár |
73.49 MFt |
|
Ingatlan adatai
| Épült |
2025 |
| Megye |
Csongrád megye |
| Város |
Szeged |
| Komfort |
Összkomfort |
| Fűtési mód |
Egyéb |
|
Épületszintek
|
1 emelet |
| Lift |
nincs |
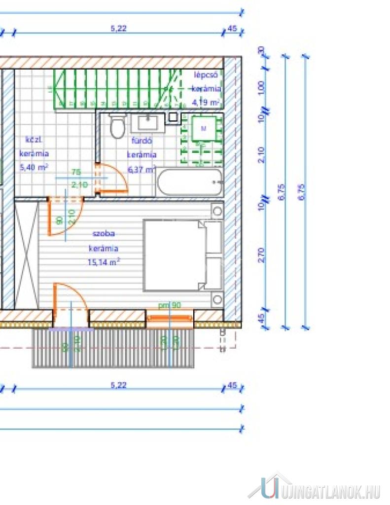
| Hasznos alapterület |
49 nm |
| Fűtési mód |
Egyéb |
| Egész szobák száma |
2 db |
| Parkolás |
Teremgarázs-garázs |
| Emelet |
Földszint + Egyszerű emelet |
|
Ingatlan bemutatása
Eladó új építésű, belvárosi kertkapcsolatos lakások Szegeden
Belvárosi – csendes belső udvarban helyezkednek el
Ingatlan típusa: társasházi lakás
Alapterület:49 M2
Elrendezés: amerikai konyhás nappali + 1 hálószoba
Főbb jellemzők:
Csendes, mégis belvárosi környezet
2 méter mély, 60 cm széles C25-ös beton alapozás, Leier 30 N/F tégla falazat 15 cm hőszigeteléssel
Hanggátló válaszfalak a teljes nyugalomért
Bramac antracit tetőcserép
3 rétegű üvegezésű műanyag nyílászárók
Padlófűtés (Westend 24 kW-os gázkazán + 100 l-es hőtároló)
3,5 kW-os hűtő-fűtő klíma
Energetikailag korszerű kivitelezés
Kíváló minőségű anyaghasználat
A VÉTELÁR TARTALMAZ 1M Ft KONYHABÚTORT , 10000Ft/M2 HIDEG-MELEG BURKOLATOKAT, 500e Ft SZANITEREKET , 100e Ft/DB BELTÉR AJTÓKAT.
ÖN MEGÁLMODJA ÉS 60 NAPON BELLÜL MÁR A SAJÁT ÍZLÉSE SZERINT KIALAKÍTOTT OTTHONBAN LAKIK.
További lehetőségek:
Kocsibeálló vásárolható: 5,5 millió Ft
Garázs vásárolható: 12 millió Ft
HITELKÉPES LAKÁSOK!
Ez a lakás ideális választás mindazok számára, akik belvárosi elhelyezkedést, modern technológiát és privát életteret keresnek Szeged szívében, de rendívüli lehetőség befektetési célra is!
TEKINTSE MEG SZEMÉLYESEN REFERENCIA INGATLANUNKAT!
|
|
Eladó lakás Szeged Szeged Belvárosi új lakások eladók!
ID szám: 82308
Amerikai konyhás: Igen; Kertkapcsolatos: Igen;
Ajánlat
Eladó
Típus
Újépítésű
Épület jellege
Új lakás
Ár
73.49 MFt
Ingatlan adatai
| Épült |
2025 |
| Megye |
Csongrád megye |
| Város |
Szeged |
| Komfort |
Összkomfort |
|
Épületszintek
tetőtér
pinceszint
földszint
|
1 emelet
|
| Lift |
|
| Hasznos alapterület |
49 nm |
| Fűtési mód |
Egyéb |
| Egész szobák száma |
2 db |
| Parkolás |
Teremgarázs-garázs |
| Emelet
egyszerű emelet
tetőtér
tetőtéri kétszintes
|
Földszint
|
Ingatlan bemutatása
Eladó új építésű, belvárosi kertkapcsolatos lakások Szegeden
Belvárosi – csendes belső udvarban helyezkednek el
Ingatlan típusa: társasházi lakás
Alapterület:49 M2
Elrendezés: amerikai konyhás nappali + 1 hálószoba
Főbb jellemzők:
Csendes, mégis belvárosi környezet
2 méter mély, 60 cm széles C25-ös beton alapozás, Leier 30 N/F tégla falazat 15 cm hőszigeteléssel
Hanggátló válaszfalak a teljes nyugalomért
Bramac antracit tetőcserép
3 rétegű üvegezésű műanyag nyílászárók
Padlófűtés (Westend 24 kW-os gázkazán + 100 l-es hőtároló)
3,5 kW-os hűtő-fűtő klíma
Energetikailag korszerű kivitelezés
Kíváló minőségű anyaghasználat
A VÉTELÁR TARTALMAZ 1M Ft KONYHABÚTORT , 10000Ft/M2 HIDEG-MELEG BURKOLATOKAT, 500e Ft SZANITEREKET , 100e Ft/DB BELTÉR AJTÓKAT.
ÖN MEGÁLMODJA ÉS 60 NAPON BELLÜL MÁR A SAJÁT ÍZLÉSE SZERINT KIALAKÍTOTT OTTHONBAN LAKIK.
További lehetőségek:
Kocsibeálló vásárolható: 5,5 millió Ft
Garázs vásárolható: 12 millió Ft
HITELKÉPES LAKÁSOK!
Ez a lakás ideális választás mindazok számára, akik belvárosi elhelyezkedést, modern technológiát és privát életteret keresnek Szeged szívében, de rendívüli lehetőség befektetési célra is!
TEKINTSE MEG SZEMÉLYESEN REFERENCIA INGATLANUNKAT!