Nyomtatás
Amerikai konyhás: Igen; Kertkapcsolatos: Igen; Közös költség összege: 34000 Ft

Eladó lakás Székesfehérvár Nefelejcs utca

ID szám: 83725

Az Ön üzletkötője:

Koncz András
+36-20-933-3750

Főbb adatok:

Ajánlat Eladó
Típus Újszerű
Jelleg Új lakás
Ár 139.90 MFt

Ingatlan adatai

Épült 2019
Megye Fejér megye
Város Székesfehérvár
Komfort Összkomfort
Fűtési mód Házfűtés egyedi méréssel
Épületszintek 2 emelet
Lift van
Hasznos alapterület 80 nm
Erkély területe 52 nm
Fűtési mód Házfűtés egyedi méréssel
Egész szobák száma 1 db
Félszobák száma 2 db
Parkolás Udvaron-felszíni beálló
Emelet 2. emelet + Egyszerű emelet

Ingatlan bemutatása

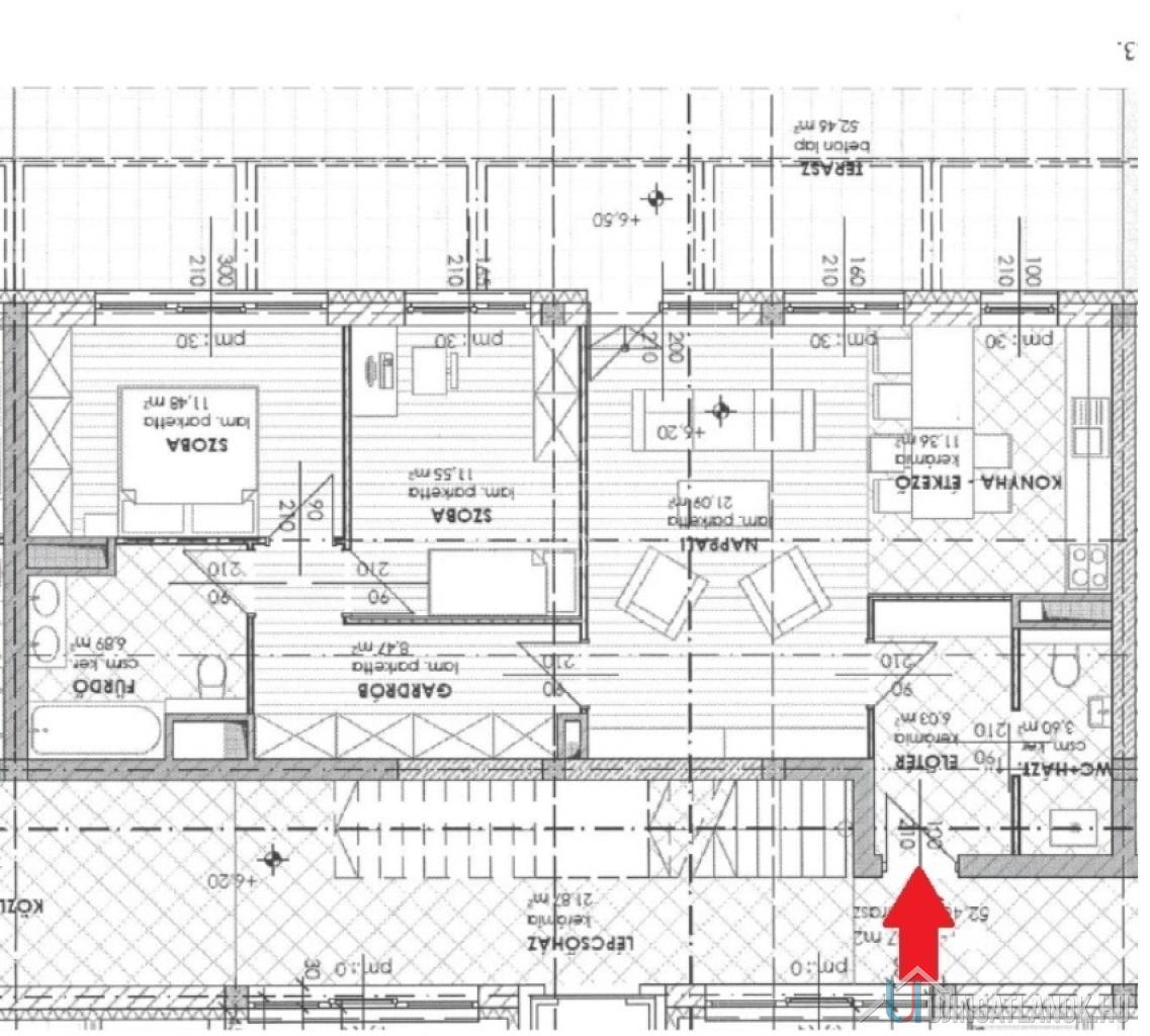
L-004685. ELADÓ EXKLUZÍV, 2019-BEN ÉPÜLT PENTHOUSE LAKÁS HATALMAS TERASSZAL, DUPLA BEÁLLÓVAL ÉS TÁROLÓVAL Eladó egy 2019-ben épült, exkluzív penthouse lakás egy csendes, családi házas övezetben található, akadálymentesített, 8 személyes lifttel rendelkező társasház 2. (legfelső) szintjén. A 80,47 m²-es lakás amerikai konyhás nappaliból, valamint két különálló, szeparált szobából áll. A háztartási helyiségben külön WC kapott helyet, a fürdőszoba pedig káddal és további WC-vel felszerelt. A lakás nyugati és déli irányból is rendkívül világos, DNy-i tájolásának köszönhetően egész nap természetes fényben fürdik. A lakás különlegessége a 52,46 m²-es, részben fedett terasz, amely tökéletesen alkalmas pihenésre, étkezésre vagy vendégek fogadására. A terasz további kényelmét elektromos napellenző biztosítja. Az ingatlan minden ablaka háromrétegű műanyag nyílászáróval és elektromos alumínium redőnyökkel felszerelt, a bejárati ajtó pedig több ponton záródó, prémium minőségű kivitel. A lakás burkolatai igényes kivitelezésűek: a szobákban és a nappaliban laminált padló található, míg a többi helyiségben járólap lett lerakva. A hőszigetelt, téglaépítésű társasházban házközponti, egyedi mérős fűtés működik, a lakásban padlófűtés biztosítja a komfortot, a fürdőszobában pedig pluszban, törölközőszárítós radiátor is meg található. A hűtésről és szükség esetén a kiegészítő fűtésről, három darab nagy teljesítményű DAIKIN klíma gondoskodik. A közös költség tartalmazza a fűtés díját is, ami rendkívül kedvező üzemeltetést tesz lehetővé. A tulajdonosok kényelmét tovább növeli, hogy a lakás szintjén egy saját, zárható, 6,46 m²-es tároló is rendelkezésre áll, amely a vételár részét képezi. A társasház elektromos kapun keresztül megközelíthető, fedett garázsában két gépkocsibeálló tartozik a lakáshoz, amelyek szintén benne vannak az árban. Az eladási ár tartalmazza továbbá a beépített szekrényeket — az előszobában, gardróbban, fürdőben és a nappaliban — valamint a modern, gépesített konyhabútort is. Ez a penthouse egy kivételesen igényes, energiatakarékos, minden részletében átgondolt, prémium minőségű otthon, ahová valóban csak be kell költözni. Az ingatlan elhelyezkedése, valamint, a környék infrastruktúrája miatt befektetésnek is kiváló. Eladási Irányár: 139,9 M Ft Ha felkeltette érdeklődését, hívja irodánkat bizalommal, éljen ingyenes, személyre szabott hitelügyintézés szolgáltatásunkkal. Segítünk továbbá adásvételhez szükséges ügyvédi közreműködésben, energetikai tanúsítvány, valamint értékbecslés elkészítésében. For English details please send us a message or an e-mail, thank you

Eladó lakás Székesfehérvár Nefelejcs utca

ID szám: 83725

Amerikai konyhás: Igen; Kertkapcsolatos: Igen; Közös költség összege: 34000 Ft

Ajánlat

Eladó

Típus

Újszerű

Épület jellege

Új lakás

Ár

139.90 MFt

Ingatlan adatai

Épült 2019
Megye Fejér megye
Város Székesfehérvár
Komfort Összkomfort
Épületszintek tetőtér pinceszint földszint 2 emelet nincs nincs nincs
Lift van
Hasznos alapterület 80 nm
Erkély területe 52 nm
Fűtési mód Házfűtés egyedi méréssel
Egész szobák száma 1 db
Félszobák száma 2 db
Parkolás Udvaron-felszíni beálló
Emelet egyszerű emelet tetőtér tetőtéri kétszintes 2. emelet van nincs nincs
Nagyításhoz kattintson a képre

Az Ön üzletkötője:

Koncz András
+36-20-933-3750
Üzenet az üzletkötőnek Ingatlan ajánlása Nyomtatási kép
Megosztás Facebookon Megosztás Twitteren

Ingatlan bemutatása

L-004685. ELADÓ EXKLUZÍV, 2019-BEN ÉPÜLT PENTHOUSE LAKÁS HATALMAS TERASSZAL, DUPLA BEÁLLÓVAL ÉS TÁROLÓVAL Eladó egy 2019-ben épült, exkluzív penthouse lakás egy csendes, családi házas övezetben található, akadálymentesített, 8 személyes lifttel rendelkező társasház 2. (legfelső) szintjén. A 80,47 m²-es lakás amerikai konyhás nappaliból, valamint két különálló, szeparált szobából áll. A háztartási helyiségben külön WC kapott helyet, a fürdőszoba pedig káddal és további WC-vel felszerelt. A lakás nyugati és déli irányból is rendkívül világos, DNy-i tájolásának köszönhetően egész nap természetes fényben fürdik. A lakás különlegessége a 52,46 m²-es, részben fedett terasz, amely tökéletesen alkalmas pihenésre, étkezésre vagy vendégek fogadására. A terasz további kényelmét elektromos napellenző biztosítja. Az ingatlan minden ablaka háromrétegű műanyag nyílászáróval és elektromos alumínium redőnyökkel felszerelt, a bejárati ajtó pedig több ponton záródó, prémium minőségű kivitel. A lakás burkolatai igényes kivitelezésűek: a szobákban és a nappaliban laminált padló található, míg a többi helyiségben járólap lett lerakva. A hőszigetelt, téglaépítésű társasházban házközponti, egyedi mérős fűtés működik, a lakásban padlófűtés biztosítja a komfortot, a fürdőszobában pedig pluszban, törölközőszárítós radiátor is meg található. A hűtésről és szükség esetén a kiegészítő fűtésről, három darab nagy teljesítményű DAIKIN klíma gondoskodik. A közös költség tartalmazza a fűtés díját is, ami rendkívül kedvező üzemeltetést tesz lehetővé. A tulajdonosok kényelmét tovább növeli, hogy a lakás szintjén egy saját, zárható, 6,46 m²-es tároló is rendelkezésre áll, amely a vételár részét képezi. A társasház elektromos kapun keresztül megközelíthető, fedett garázsában két gépkocsibeálló tartozik a lakáshoz, amelyek szintén benne vannak az árban. Az eladási ár tartalmazza továbbá a beépített szekrényeket — az előszobában, gardróbban, fürdőben és a nappaliban — valamint a modern, gépesített konyhabútort is. Ez a penthouse egy kivételesen igényes, energiatakarékos, minden részletében átgondolt, prémium minőségű otthon, ahová valóban csak be kell költözni. Az ingatlan elhelyezkedése, valamint, a környék infrastruktúrája miatt befektetésnek is kiváló. Eladási Irányár: 139,9 M Ft Ha felkeltette érdeklődését, hívja irodánkat bizalommal, éljen ingyenes, személyre szabott hitelügyintézés szolgáltatásunkkal. Segítünk továbbá adásvételhez szükséges ügyvédi közreműködésben, energetikai tanúsítvány, valamint értékbecslés elkészítésében. For English details please send us a message or an e-mail, thank you

Megosztás Facebookon Megosztás Twitteren
www.ujingatlanok.hu - QR kód

Linkajánló

 

LinkBank