Nyomtatás
|
Amerikai konyhás: Igen; Kertkapcsolatos: Igen;
|
||
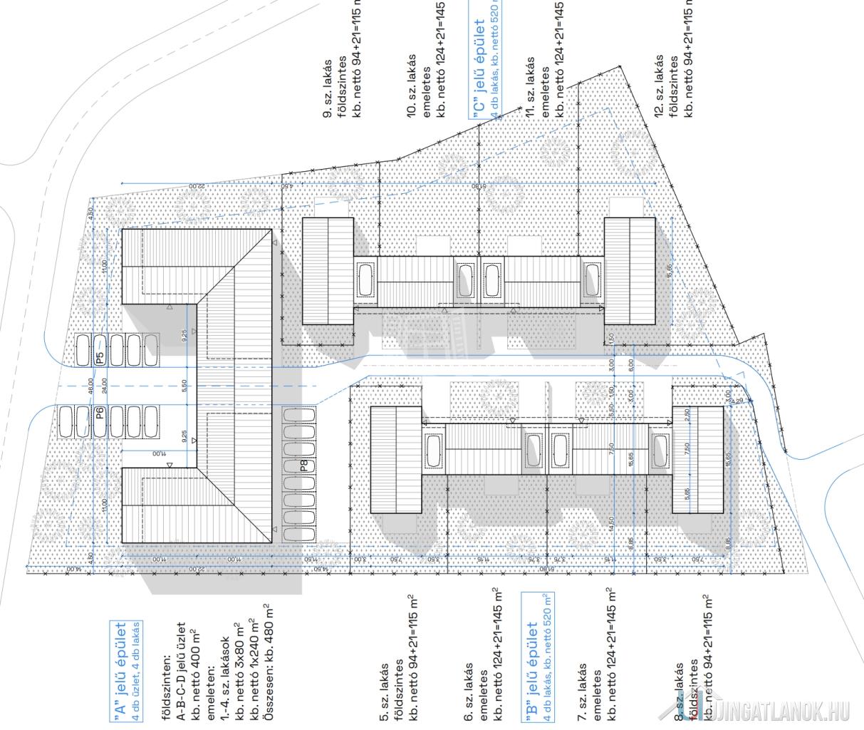
Eladó lakás Taksony ECOLAND LAKÓPARK |
ID szám: 85191 | |
|
Eladó lakás Taksony ECOLAND LAKÓPARK
ID szám: 85191
Amerikai konyhás: Igen; Kertkapcsolatos: Igen;
Ajánlat
Eladó
Típus
Újépítésű
Épület jellege
Új lakás
Ár
96 MFt
Ingatlan adatai
| Épült | 2026 |
|---|---|
| Megye | Pest megye |
| Város | Taksony |
| Komfort | Összkomfort |
| Épületszintek tetőtér pinceszint földszint |
1 emelet
|
| Lift |
|
| Hasznos alapterület | 80 nm |
| Egész szobák száma | 3 db |
| Parkolás | Teremgarázs-garázs |
| Emelet egyszerű emelet tetőtér tetőtéri kétszintes |
1. emelet
|
Nagyításhoz kattintson a képre
Az Ön üzletkötője:
Goldea Edit Anikó
+36-20-588-7800


