Nyomtatás
Amerikai konyhás: Igen; Kertkapcsolatos: Igen;

Eladó Szigetszentmárton Duna part közelében

ID szám: 81481

Az Ön üzletkötője:

Csík Zsolt
+36-30-641-6167

Főbb adatok:

Ajánlat Eladó
Típus Újépítésű
Jelleg Új családi ház
Ár 69.90 MFt

Ingatlan adatai

Épült 2025
Megye Pest megye
Város Szigetszentmárton
Komfort Összkomfort
Fűtési mód Cirkófűtés
Épületszintek 1 emelet
Lift nincs
Hasznos alapterület 97 nm
Telek területe 122 nm
Lakáshoz tartozó kert 122 nm
Terasz területe 9 nm
Fűtési mód Cirkófűtés
Egész szobák száma 4 db
Parkolás Udvaron-felszíni beálló
Emelet Nincs adat + Egyszerű emelet

Ingatlan bemutatása

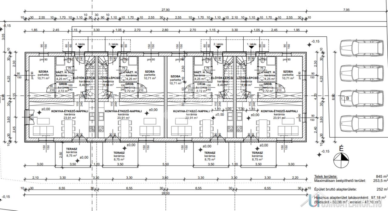
Szigetszentmárton új építésű házai szomszédságában, négylakásos sorház 3-as számú lakása eladó, 293 m2 saját használatú telekrésszel. KIVÁLÓ KIVITELEZŐ, VERSENYKÉPES ÁRON, KIVÁLÓ OTTHONT AJÁNL ÖNNEK! CSOK +, SAJÁT KERT! Az otthon nettó 97,90 nm, ehhez 8,75 nm terasz kapcsolódik. Helyiségei: Földszint 50,8 nm+8,75 nm terasz. – konyha/étkező/nappali 23,91 nm – szoba 10,71 nm – háztartási helyiség zuhanyzóval, toalettel 4,25 nm – előtér 8,49 nm – gardrób 2,72 nm Emelet 47,10 nm – közlekedő 4,29 nm – fürdőszoba 7,17 nm – szoba 14,25 nm – szoba 11,13 nm – szoba 10,13 nm MŰSZAKI TARTALOM: -vasalt beton sáv alap -Porotherm tégla falazat -nyílászárói (ablakok) műanyag szerkezetűek 6 légkamrás 3 rétegű hőszigetelt üvegezéssel. -hűtő fűtő klíma -15 cm Dryvit szigetelés -lábazaton 10 cm XPS -beton cserép fedésű tető -lakások között SILKA hanggátló tégla falazat -kombi cirkó, padló fűtés az egész lakásban -választható burkolatok -saját autóbeálló A sorházi lakások árai: 1. sz lakás 97 nm lakótér 197 nm telekrész, ára: 74.900.000 Ft ELKELT 2. sz lakás 97 nm lakótér 122 nm telekrész, ára: 64.900.000 Ft ELKELET 3. sz lakás 97 nm lakótér 122 nm telekrész, ára: 69.900.000 Ft 4. sz lakás 97 nm lakótér 293 nm telekrész, ára: 74.900.000 Ft Az ingatlant kiváló referenciákkal rendelkező helyi tőkeerős kivitelező építi meg, várható birtokba-adás 2025 nyara. Szigetszentmárton a Csepel-sziget középső részén a Ráckevei-Duna és a Duna között terül el , Budapesttől 35 kilométerre . A település megközelíthető a Ráckevei HÉV-vel , gépkocsival az 5101-es számú úton ,illetve menetrend szerinti buszjárattal Csepelről. A településen igazi csendben , kellemes friss levegővel élvezheti a mindennapokat , pár méteren belül minden megtalálható , Pl : Óvoda,iskola, orvosi rendelő , buszmegálló játszótér , benzinkút, bisztró , hentes, közért, szépségipari szolgáltatások és a csodálatos Duna part , mely fürdésre,horgászatra vagy számos sportolási lehetőségre is alkalmas. Várom megtisztelő hívását! FINANSZÍROZÁS: Nálunk mindent egy helyen intézhet: - hivatalos ingatlanközvetítés; - szakszerű jogi képviselet; - profi CSOK-PLUSZ, és hitelügyintézés: 16 Bank, több mint 100 konstrukció; A részletes adatvédelmi tájékoztató folyamatosan elérhető weboldalunkon.

Eladó Szigetszentmárton Duna part közelében

ID szám: 81481

Amerikai konyhás: Igen; Kertkapcsolatos: Igen;

Ajánlat

Eladó

Típus

Újépítésű

Épület jellege

Új családi ház

Ár

69.90 MFt

Ingatlan adatai

Épült 2025
Megye Pest megye
Város Szigetszentmárton
Komfort Összkomfort
Épületszintek tetőtér pinceszint földszint 1 emelet nincs nincs nincs
Lift nincs
Hasznos alapterület 97 nm
Telek területe 122 nm
Lakáshoz tartozó kert 122 nm
Terasz területe 9 nm
Fűtési mód Cirkófűtés
Egész szobák száma 4 db
Parkolás Udvaron-felszíni beálló
Emelet egyszerű emelet tetőtér tetőtéri kétszintes Nincs adat van nincs nincs
Nagyításhoz kattintson a képre

Az Ön üzletkötője:

Csík Zsolt
+36-30-641-6167
Üzenet az üzletkötőnek Ingatlan ajánlása Nyomtatási kép
Megosztás Facebookon Megosztás Twitteren

Ingatlan bemutatása

Szigetszentmárton új építésű házai szomszédságában, négylakásos sorház 3-as számú lakása eladó, 293 m2 saját használatú telekrésszel. KIVÁLÓ KIVITELEZŐ, VERSENYKÉPES ÁRON, KIVÁLÓ OTTHONT AJÁNL ÖNNEK! CSOK +, SAJÁT KERT! Az otthon nettó 97,90 nm, ehhez 8,75 nm terasz kapcsolódik. Helyiségei: Földszint 50,8 nm+8,75 nm terasz. – konyha/étkező/nappali 23,91 nm – szoba 10,71 nm – háztartási helyiség zuhanyzóval, toalettel 4,25 nm – előtér 8,49 nm – gardrób 2,72 nm Emelet 47,10 nm – közlekedő 4,29 nm – fürdőszoba 7,17 nm – szoba 14,25 nm – szoba 11,13 nm – szoba 10,13 nm MŰSZAKI TARTALOM: -vasalt beton sáv alap -Porotherm tégla falazat -nyílászárói (ablakok) műanyag szerkezetűek 6 légkamrás 3 rétegű hőszigetelt üvegezéssel. -hűtő fűtő klíma -15 cm Dryvit szigetelés -lábazaton 10 cm XPS -beton cserép fedésű tető -lakások között SILKA hanggátló tégla falazat -kombi cirkó, padló fűtés az egész lakásban -választható burkolatok -saját autóbeálló A sorházi lakások árai: 1. sz lakás 97 nm lakótér 197 nm telekrész, ára: 74.900.000 Ft ELKELT 2. sz lakás 97 nm lakótér 122 nm telekrész, ára: 64.900.000 Ft ELKELET 3. sz lakás 97 nm lakótér 122 nm telekrész, ára: 69.900.000 Ft 4. sz lakás 97 nm lakótér 293 nm telekrész, ára: 74.900.000 Ft Az ingatlant kiváló referenciákkal rendelkező helyi tőkeerős kivitelező építi meg, várható birtokba-adás 2025 nyara. Szigetszentmárton a Csepel-sziget középső részén a Ráckevei-Duna és a Duna között terül el , Budapesttől 35 kilométerre . A település megközelíthető a Ráckevei HÉV-vel , gépkocsival az 5101-es számú úton ,illetve menetrend szerinti buszjárattal Csepelről. A településen igazi csendben , kellemes friss levegővel élvezheti a mindennapokat , pár méteren belül minden megtalálható , Pl : Óvoda,iskola, orvosi rendelő , buszmegálló játszótér , benzinkút, bisztró , hentes, közért, szépségipari szolgáltatások és a csodálatos Duna part , mely fürdésre,horgászatra vagy számos sportolási lehetőségre is alkalmas. Várom megtisztelő hívását! FINANSZÍROZÁS: Nálunk mindent egy helyen intézhet: - hivatalos ingatlanközvetítés; - szakszerű jogi képviselet; - profi CSOK-PLUSZ, és hitelügyintézés: 16 Bank, több mint 100 konstrukció; A részletes adatvédelmi tájékoztató folyamatosan elérhető weboldalunkon.

Megosztás Facebookon Megosztás Twitteren
www.ujingatlanok.hu - QR kód

Linkajánló

 

LinkBank