Nyomtatás
Amerikai konyhás: Igen; Kertkapcsolatos: Igen;

Eladó családi ház Iszkaszentgyörgy Márványkert

ID szám: 84673

Az Ön üzletkötője:

Kruller Petra
+36-20-583-7555

Főbb adatok:

Ajánlat Eladó
Típus Újépítésű
Jelleg Új családi ház
Ár 81.90 MFt

Ingatlan adatai

Épült 2025
Megye Fejér megye
Város Iszkaszentgyörgy
Komfort Összkomfort
Épületszintek 1 emelet
Lift nincs
Hasznos alapterület 127 nm
Telek területe 593 nm
Lakáshoz tartozó kert 593 nm
Terasz területe 21 nm
Egész szobák száma 4 db
Parkolás Udvaron-felszíni beálló
Emelet Nincs adat + Egyszerű emelet

Ingatlan bemutatása

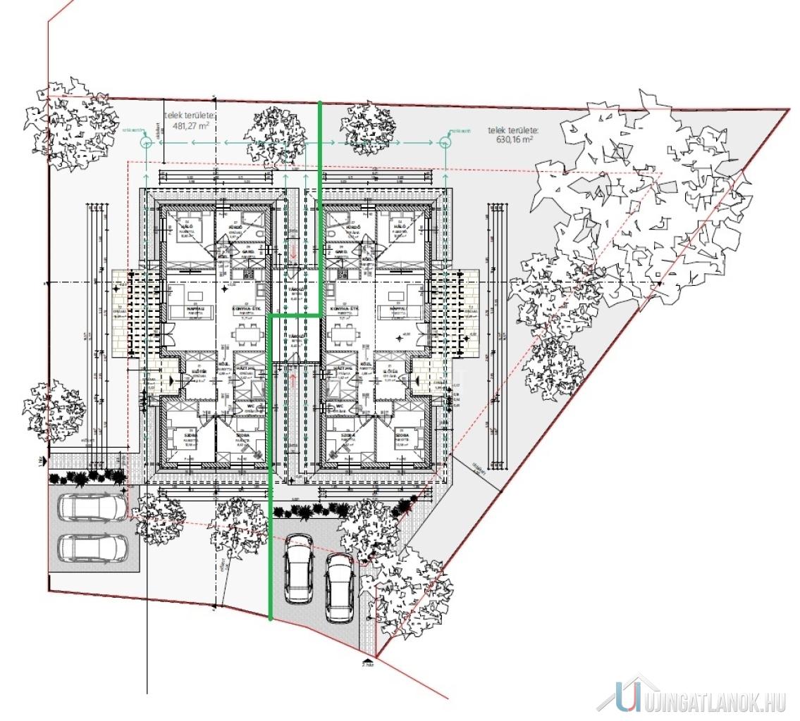
Vh-004401 Iszkaszentgyörgyön, a Márványkert szomszédságában, csendes, kedvelt részen egyszintes, igényes és egyedi kivitelezésű nappali+ 3 szobás, A+ energetika besorolású, újépítésű ikerházi egység saját 593m2-es telken, 2026 ÁPRILISI ÁTADÁSSAL eladó! Az ingatlan könnyen megközelíthető, a környék tömegközlekedése jó, a településen minden elérhető, ami a kényelmes életvitelhez elengedhetetlen ( orvosi rendelő, gyógyszertár, posta, bölcsőde, óvoda, polgármesteri hivatal, boltok, piac, fitness-terem, tanösvény, Kastély Park, sportpálya, szépészeti szolgáltatások, kutyaiskola és panzió, cukrászdák). A ház tágas, világos, körbe napozott, a mai kor igényszintjének megfelelő, minőségi anyagokból, korszerű dizájnnal és kialakítással készül. Műszaki paraméterek: - a homlokzati falak 30 cm vastag Viablokk falazatúak 10cm vastag szigeteléssel, a válaszfalak szintén nem könnyített szerkezetűek - a lábazat 5cm vastag XPS szigetelést kap - a tetőszerkezet szeglemezes, könnyített födém készül Isocell cellulóz szigeteléssel, Bramac beton cserép fedéssel. ( a padlástér felár ellenében opcionálisan rakodhatóvá/járhatóvá tehető) - A fűtést hőszivattyú biztosítja padlófűtéses hőleadással, melynek köszönhetően a ház H-tarifás kedvezményben részesül fűtési szezonban. - a nyílászárók műanyagok, 6 kamrás, 3 rétegű üvegezésűek A ház hideg,-meleg burkolatjai, szaniterei, nyílászárók színei, homlokzati színei előre megadott ár kategóriákon belül választhatók. (Egyéb speciális munkák kivitelezésének igénye (pl: klíma, szellőző rendszer, központi porszívó, kandalló, kémény kialakítás, víztisztító kiállás stb.) külön egyeztetést igényel) (részletes műszaki leírás igényével kapcsolatban, kérem írjon üzenetet) Elosztását tekintve 103 m2 hasznos alapterületű Előszoba, amerikai konyhás nappali kamrával, 3db 9m2-es hálószoba, vendég wc és háztartási helyiség kerül kialakításra. A házhoz kapcsolódik egy fedett terasz és egy 21m2-es terasz. Fontosabb paraméterek: ● 2026 ÁPRILISI átadás ● 593 m2 önálló telekterület ● Nappali + 3 hálószoba ● H tarifás villany ● Hőszivattyú ● Alacsony rezsiköltség Megbízható és tapasztalt ingatlanfejlesztő, kivitelező jegyzi a ház építését, számtalan referenciaépülettel rendelkezik. A vásárláshoz, a jelenleg aktuális családok „újépítésű” otthonteremtésére vonatkozó összes támogatás igénybe vehető. AZ INGATLAN ALKALMAS 5%-os ÁFA, Otthon Start (3%-os), CSOK, CSOK HITEL IGÉNYBEVÉTELÉRE! Eladási irányár: 81,9 M Ft ELÉRHETŐ SZABAD HÁZAK: ,,A" IKERHÁZ (2026 áprilisi átadás) - 1. LAKÓEGYSÉG ----- (CSAK A KÜLSŐ TÁROLÓ FALA KÖZÖS A SZOMSZÉDOS LAKÓEGYSÉGGEL) ÖSSZESEN 116m2 ----- NAPPALI+ 3 SZOBA ----- 630m2 TELEK 81 900 000 FORINT - 2. LAKÓEGYSÉG ----- (CSAK A KÜLSŐ TÁROLÓ FALA KÖZÖS A SZOMSZÉDOS LAKÓEGYSÉGGEL) ÖSSZESEN 116m2 ----- NAPPALI+ 3 SZOBA ----- 481m2 TELEK 79 900 000 FORINT ,,B" IKERHÁZ (2026 év végi átadás) - 1. LAKÓEGYSÉG ÖSSZESEN 127m2 ----- NAPPALI +3 SZOBA ----- 593m2 TELEK 81 900 000 FORINT - 2. LAKÓEGYSÉG ÖSSZESEN 127m2 ----- NAPPALI +3 SZOBA ----- 460m2 TELEK 79 900 000 FORINT ÖNÁLLÓ HÁZ (2026 áprilisi átadás) ÖSSZESEN 131m2 ----- NAPPALI +4 SZOBA ----- 1106m2 TELEK 95 000 000 FORINT Az ingatlan adottságainak, fekvésének köszönhetően alkalmas továbbá vállalkozásra, üzleti vagy befektetési célra, hiszen akár bérbe adható, vagy üzlet, szolgáltatás (pl: orvosi rendelő, fodrász, kozmetika, irodai tevékenység,(Csendes tevékenység engedélyezett). Ha felkeltette érdeklődését, hívjon bizalommal, éljen ingyenes, személyre szabott hitelügyintézés szolgáltatásunkkal. Segítünk továbbá adásvételhez szükséges ügyvédi közreműködésben, energetikai tanúsítvány, valamint értékbecslés elkészítésében. For English information please send a message.

Eladó családi ház Iszkaszentgyörgy Márványkert

ID szám: 84673

Amerikai konyhás: Igen; Kertkapcsolatos: Igen;

Ajánlat

Eladó

Típus

Újépítésű

Épület jellege

Új családi ház

Ár

81.90 MFt

Ingatlan adatai

Épült 2025
Megye Fejér megye
Város Iszkaszentgyörgy
Komfort Összkomfort
Épületszintek tetőtér pinceszint földszint 1 emelet nincs nincs nincs
Lift nincs
Hasznos alapterület 127 nm
Telek területe 593 nm
Lakáshoz tartozó kert 593 nm
Terasz területe 21 nm
Egész szobák száma 4 db
Parkolás Udvaron-felszíni beálló
Emelet egyszerű emelet tetőtér tetőtéri kétszintes Nincs adat van nincs nincs
Nagyításhoz kattintson a képre

Az Ön üzletkötője:

Kruller Petra
+36-20-583-7555
Üzenet az üzletkötőnek Ingatlan ajánlása Nyomtatási kép
Megosztás Facebookon Megosztás Twitteren

Ingatlan bemutatása

Vh-004401 Iszkaszentgyörgyön, a Márványkert szomszédságában, csendes, kedvelt részen egyszintes, igényes és egyedi kivitelezésű nappali+ 3 szobás, A+ energetika besorolású, újépítésű ikerházi egység saját 593m2-es telken, 2026 ÁPRILISI ÁTADÁSSAL eladó! Az ingatlan könnyen megközelíthető, a környék tömegközlekedése jó, a településen minden elérhető, ami a kényelmes életvitelhez elengedhetetlen ( orvosi rendelő, gyógyszertár, posta, bölcsőde, óvoda, polgármesteri hivatal, boltok, piac, fitness-terem, tanösvény, Kastély Park, sportpálya, szépészeti szolgáltatások, kutyaiskola és panzió, cukrászdák). A ház tágas, világos, körbe napozott, a mai kor igényszintjének megfelelő, minőségi anyagokból, korszerű dizájnnal és kialakítással készül. Műszaki paraméterek: - a homlokzati falak 30 cm vastag Viablokk falazatúak 10cm vastag szigeteléssel, a válaszfalak szintén nem könnyített szerkezetűek - a lábazat 5cm vastag XPS szigetelést kap - a tetőszerkezet szeglemezes, könnyített födém készül Isocell cellulóz szigeteléssel, Bramac beton cserép fedéssel. ( a padlástér felár ellenében opcionálisan rakodhatóvá/járhatóvá tehető) - A fűtést hőszivattyú biztosítja padlófűtéses hőleadással, melynek köszönhetően a ház H-tarifás kedvezményben részesül fűtési szezonban. - a nyílászárók műanyagok, 6 kamrás, 3 rétegű üvegezésűek A ház hideg,-meleg burkolatjai, szaniterei, nyílászárók színei, homlokzati színei előre megadott ár kategóriákon belül választhatók. (Egyéb speciális munkák kivitelezésének igénye (pl: klíma, szellőző rendszer, központi porszívó, kandalló, kémény kialakítás, víztisztító kiállás stb.) külön egyeztetést igényel) (részletes műszaki leírás igényével kapcsolatban, kérem írjon üzenetet) Elosztását tekintve 103 m2 hasznos alapterületű Előszoba, amerikai konyhás nappali kamrával, 3db 9m2-es hálószoba, vendég wc és háztartási helyiség kerül kialakításra. A házhoz kapcsolódik egy fedett terasz és egy 21m2-es terasz. Fontosabb paraméterek: ● 2026 ÁPRILISI átadás ● 593 m2 önálló telekterület ● Nappali + 3 hálószoba ● H tarifás villany ● Hőszivattyú ● Alacsony rezsiköltség Megbízható és tapasztalt ingatlanfejlesztő, kivitelező jegyzi a ház építését, számtalan referenciaépülettel rendelkezik. A vásárláshoz, a jelenleg aktuális családok „újépítésű” otthonteremtésére vonatkozó összes támogatás igénybe vehető. AZ INGATLAN ALKALMAS 5%-os ÁFA, Otthon Start (3%-os), CSOK, CSOK HITEL IGÉNYBEVÉTELÉRE! Eladási irányár: 81,9 M Ft ELÉRHETŐ SZABAD HÁZAK: ,,A" IKERHÁZ (2026 áprilisi átadás) - 1. LAKÓEGYSÉG ----- (CSAK A KÜLSŐ TÁROLÓ FALA KÖZÖS A SZOMSZÉDOS LAKÓEGYSÉGGEL) ÖSSZESEN 116m2 ----- NAPPALI+ 3 SZOBA ----- 630m2 TELEK 81 900 000 FORINT - 2. LAKÓEGYSÉG ----- (CSAK A KÜLSŐ TÁROLÓ FALA KÖZÖS A SZOMSZÉDOS LAKÓEGYSÉGGEL) ÖSSZESEN 116m2 ----- NAPPALI+ 3 SZOBA ----- 481m2 TELEK 79 900 000 FORINT ,,B" IKERHÁZ (2026 év végi átadás) - 1. LAKÓEGYSÉG ÖSSZESEN 127m2 ----- NAPPALI +3 SZOBA ----- 593m2 TELEK 81 900 000 FORINT - 2. LAKÓEGYSÉG ÖSSZESEN 127m2 ----- NAPPALI +3 SZOBA ----- 460m2 TELEK 79 900 000 FORINT ÖNÁLLÓ HÁZ (2026 áprilisi átadás) ÖSSZESEN 131m2 ----- NAPPALI +4 SZOBA ----- 1106m2 TELEK 95 000 000 FORINT Az ingatlan adottságainak, fekvésének köszönhetően alkalmas továbbá vállalkozásra, üzleti vagy befektetési célra, hiszen akár bérbe adható, vagy üzlet, szolgáltatás (pl: orvosi rendelő, fodrász, kozmetika, irodai tevékenység,(Csendes tevékenység engedélyezett). Ha felkeltette érdeklődését, hívjon bizalommal, éljen ingyenes, személyre szabott hitelügyintézés szolgáltatásunkkal. Segítünk továbbá adásvételhez szükséges ügyvédi közreműködésben, energetikai tanúsítvány, valamint értékbecslés elkészítésében. For English information please send a message.

Megosztás Facebookon Megosztás Twitteren
www.ujingatlanok.hu - QR kód

Linkajánló

 

LinkBank