Nyomtatás
Amerikai konyhás: Igen; Kertkapcsolatos: Igen;
|
Eladó családi ház Jászberény Bársony utca |
ID szám: 83130 |
|
Az Ön üzletkötője:
 Horváth Péter
 +36-70-606-2990
|
Főbb adatok:
| Ajánlat |
Eladó |
| Típus |
Újépítésű |
| Jelleg |
Új családi ház |
| Ár |
62.90 MFt |
|
Ingatlan adatai
| Épült |
2025 |
| Megye |
Jász-Nagykun-Szolnok megye |
| Város |
Jászberény |
| Komfort |
Összkomfort |
|
Épületszintek
|
1 emelet |
| Lift |
nincs |
| Hasznos alapterület |
100 nm |
| Telek területe |
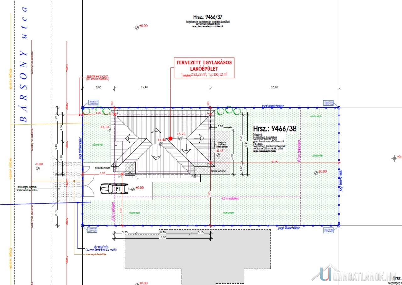
737 nm |
| Lakáshoz tartozó kert |
737 nm |
| Terasz területe |
26 nm |
| Egész szobák száma |
5 db |
| Parkolás |
Udvaron-felszíni beálló |
| Emelet |
Nincs adat + Egyszerű emelet |
|
Ingatlan bemutatása
Jászberényben a Szatmári lakóparkban a Bársony utcában , 737 m2-es telken, újonnan épülő nettó 100,12 m2 hasznos lakótérrel rendelkező, 4 szoba + nappalis önálló családi ház eladó.
Csok plusz, Otthon Start elérhető!
Az építkezés elkezdődött, az alap elkészült.
Az ingatlan 30-as Nútféderes tégla falazóelemből épül, fa födémmel.
A tető héjazata antracit betoncserép lesz, a homlokzatok 15cm EPS, a padló 10cm Austrotherm AT-N100-as, a vízszintes födém 25cm Ásványgyapot szigeteléssel lesz ellátva.
Hat légkamrás 3 rétegű evegekkel szerelt nyílászárók kerülnek beépítésre.
A fűtést 10kw-os monoblockos hőszivattyús rendszer fogja ellátni, padlófűtéssel.
A műszaki tartalom választható az alábbi költségkereten belül:
-hidegburkolat:3000.- Ft./m2-ig.
-melegburkolat:3000.- Ft./m2-ig
-csaptelepek:15.000.- Ft./db
-kád vagy zuhany: 40.000.- Ft.
-beltéri ajtók:35.000.- Ft./db
Elektromos kiépítés:
-Konnektorok szobákban: 3 db
-Konnektorok nappaliban 4db + internet és kábeltv kiállás
-Konnektorok konyhában: 6db
-Világítás helyiségenként 1-1 db
-Kábeltévé: Előkészítés
Magasabb árú tatalom is választható a különbség finanszírozásával.
Riasztó előkészítés és kapu mozgató elektronika előkészítés is készül.
Kérésre szívesen küldünk komplett tervdokumentációt, műszaki leírást.
A kivitelező korábban Sülysápon számos ingatlant épített,a már értékesített és birtokbaadott ingatlanokat komoly érdeklődés esetén szívesen megmutatjuk referenciaként.
Várható átadás 2026 második negyedév!
INGYENES hitel tanácsadás, CSOK Plusz ügyintézés!
BANKFÜGGETLEN hitelcentrumunk az összes elérhető bank és hitelintézet ajánlatát versenyezteti az Ön kedvéért, ráadásul DÍJMENTESEN.
- Egyedi, bankfiókban nem elérhető kamat- és díjkedvezmények
- Hitelképesség vizsgálat
- Idő, energia és pénz megtakarítás
- Teljes hivatali ügyintézés
Amennyiben hirdetésem felkeltette az érdeklődését vagy egyéb információra van szüksége hívjon bizalommal!
|
|
Eladó családi ház Jászberény Bársony utca
ID szám: 83130
Amerikai konyhás: Igen; Kertkapcsolatos: Igen;
Ajánlat
Eladó
Típus
Újépítésű
Épület jellege
Új családi ház
Ár
62.90 MFt
Ingatlan adatai
| Épült |
2025 |
| Megye |
Jász-Nagykun-Szolnok megye |
| Város |
Jászberény |
| Komfort |
Összkomfort |
|
Épületszintek
tetőtér
pinceszint
földszint
|
1 emelet
|
| Lift |
|
| Hasznos alapterület |
100 nm |
| Telek területe |
737 nm |
| Lakáshoz tartozó kert |
737 nm |
| Terasz területe |
26 nm |
| Egész szobák száma |
5 db |
| Parkolás |
Udvaron-felszíni beálló |
| Emelet
egyszerű emelet
tetőtér
tetőtéri kétszintes
|
Nincs adat
|
Ingatlan bemutatása
Jászberényben a Szatmári lakóparkban a Bársony utcában , 737 m2-es telken, újonnan épülő nettó 100,12 m2 hasznos lakótérrel rendelkező, 4 szoba + nappalis önálló családi ház eladó.
Csok plusz, Otthon Start elérhető!
Az építkezés elkezdődött, az alap elkészült.
Az ingatlan 30-as Nútféderes tégla falazóelemből épül, fa födémmel.
A tető héjazata antracit betoncserép lesz, a homlokzatok 15cm EPS, a padló 10cm Austrotherm AT-N100-as, a vízszintes födém 25cm Ásványgyapot szigeteléssel lesz ellátva.
Hat légkamrás 3 rétegű evegekkel szerelt nyílászárók kerülnek beépítésre.
A fűtést 10kw-os monoblockos hőszivattyús rendszer fogja ellátni, padlófűtéssel.
A műszaki tartalom választható az alábbi költségkereten belül:
-hidegburkolat:3000.- Ft./m2-ig.
-melegburkolat:3000.- Ft./m2-ig
-csaptelepek:15.000.- Ft./db
-kád vagy zuhany: 40.000.- Ft.
-beltéri ajtók:35.000.- Ft./db
Elektromos kiépítés:
-Konnektorok szobákban: 3 db
-Konnektorok nappaliban 4db + internet és kábeltv kiállás
-Konnektorok konyhában: 6db
-Világítás helyiségenként 1-1 db
-Kábeltévé: Előkészítés
Magasabb árú tatalom is választható a különbség finanszírozásával.
Riasztó előkészítés és kapu mozgató elektronika előkészítés is készül.
Kérésre szívesen küldünk komplett tervdokumentációt, műszaki leírást.
A kivitelező korábban Sülysápon számos ingatlant épített,a már értékesített és birtokbaadott ingatlanokat komoly érdeklődés esetén szívesen megmutatjuk referenciaként.
Várható átadás 2026 második negyedév!
INGYENES hitel tanácsadás, CSOK Plusz ügyintézés!
BANKFÜGGETLEN hitelcentrumunk az összes elérhető bank és hitelintézet ajánlatát versenyezteti az Ön kedvéért, ráadásul DÍJMENTESEN.
- Egyedi, bankfiókban nem elérhető kamat- és díjkedvezmények
- Hitelképesség vizsgálat
- Idő, energia és pénz megtakarítás
- Teljes hivatali ügyintézés
Amennyiben hirdetésem felkeltette az érdeklődését vagy egyéb információra van szüksége hívjon bizalommal!